21. ročník soutěže King of daylight / Freestyle
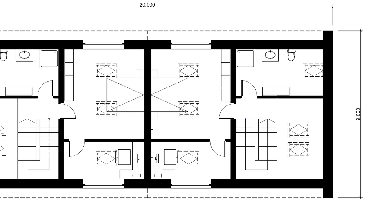
TWINHOUSE
Jan Stuchlík

Název projektu
TWINHOUSE
Vedoucí projektu
Ing. Tomáš Fischer
Název školy
Střední průmyslová škola stavební Opava, p.o.
Rok
2025
Popis projektu
Ve svém projektu jsem vytvořil dvoj domek, který jsem pojmenoval TWINHOUSE. TWIN jelikož dům je zrcadlový tudíž je zde podobnost jako u dvojčat. Střecha, východní a západní strany jsou osazeny zelení. Jelikož mým cílem je přivádět více zeleně do zastavěných oblastí, na mě jako na člověka má zeleň velice pozitivní efekt. Na druhou stranu zeleň u budov pomáhá ke snížení uhlíkové stopy a přispívá k čistějšímu ovzduší. Na střeše je použito šest páru střešních oken VELUX.






