21. ročník soutěže King of daylight / Freestyle
DŮM CAMILLIO
Hana Stuchlíková

Název projektu
DŮM CAMILLIO
Vedoucí projektu
Ing.Arch.Tomáš Fischer
Název školy
Střední průmyslová škola stavební, Opava, příspěvková organizace
Rok
2025
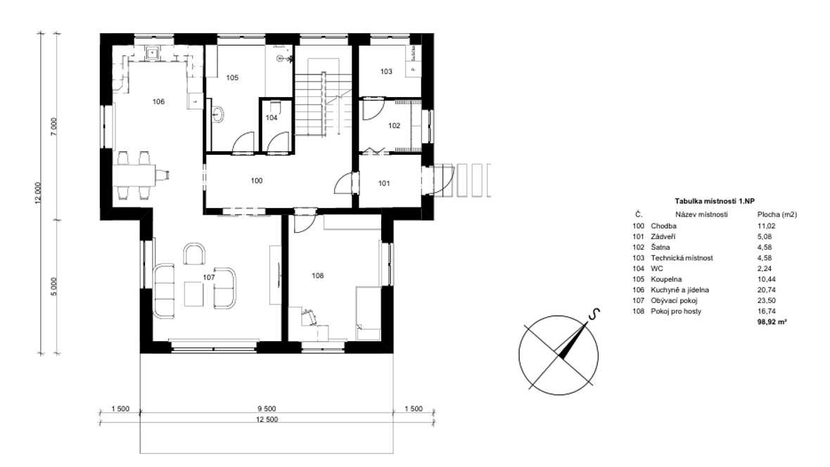
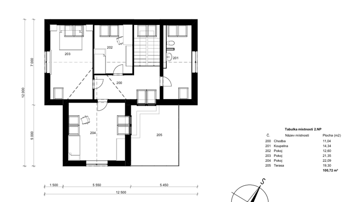
Popis projektu
Původním záměrem při navrhování tohoto objektu bylo vytvoření prostoru, kde by se mladí lidé mohli scházet a tvořit nezapomenutelné zážitky. Může být využíván pro sezónní rekreaci, ale také pro trvalé bydlení. Dům je zastřešen sedlovou střechou. Jedná se o dvoupodlažní stavbu postavenou ve stěnovém konstrukčním systému. Dostatek denního světla je zajištěn nejrůznějšími střešními okny značky VELUX a také velkými fasádními okny, které světlo dokonale propouští. Disponuje čtyřmi prostornými pokoji, z toho jeden - v přízemí - je určen především pro pobyt případných hostů. Fasádu tvoří dřevěný obklad, který dodává celému objektu přírodní nádech a jeho obyvatelům pocit bezpečí a klidu.












