21. ročník soutěže King of daylight / Freestyle
Galerie výtvarného umění
Amálie Hlaváčová

Název projektu
Galerie výtvarného umění
Spoluautor projektu
Vedoucí projektu
Ing. Tomáš Fischer
Název školy
SPŠ stavební, Opava, příspěvková organizace
Rok
2024/2025
Popis projektu
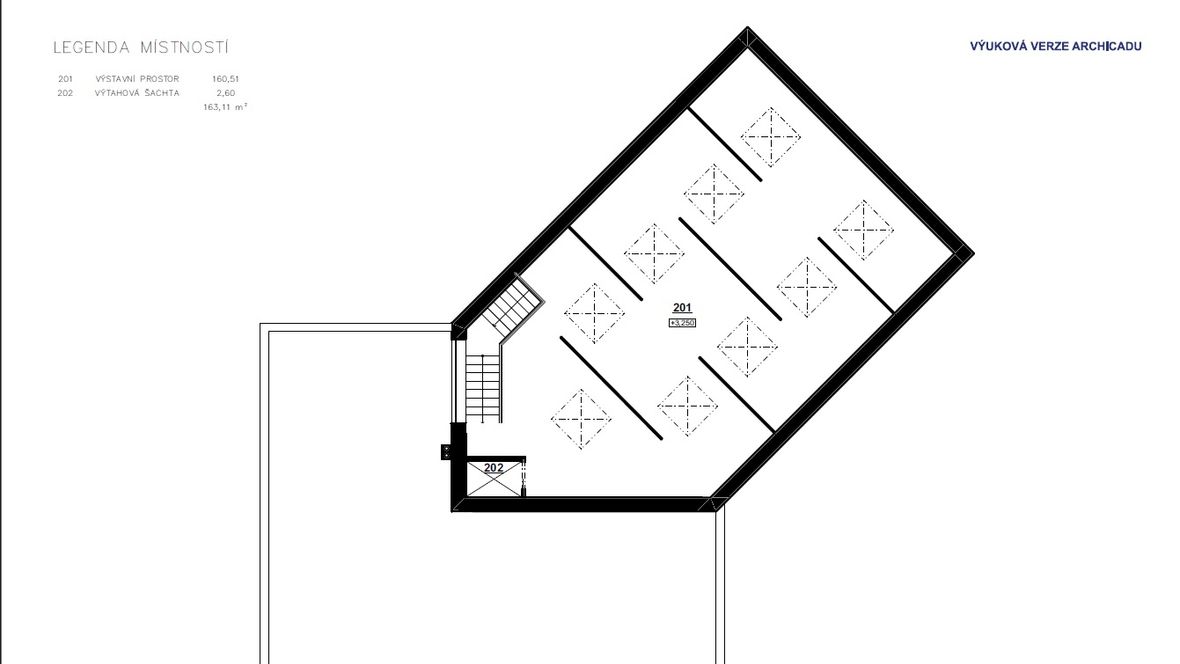
Galerie výtvarného umění je dvoupodlažní objekt určený pro prezentaci uměleckých děl. V prvním nadzemním podlaží se nachází zázemí pro návštěvníky i zaměstnance – toalety, recepce, šatna a oddělené pracovní prostory. Součástí tohoto podlaží je také samostatný výstavní prostor určený pro prezentaci soch. Druhé nadzemní podlaží je věnováno obrazům, které jsou vystaveny v prosvětleném prostoru díky střešním světlíkům Velux, čímž je zajištěno přirozené osvětlení a vhodná atmosféra pro vnímání výtvarného umění.








