21. ročník soutěže King of daylight / Freestyle
HOTEL NOX
Tobiáš Fleisner

Název projektu
Vedoucí projektu
Název školy
Rok
Popis projektu
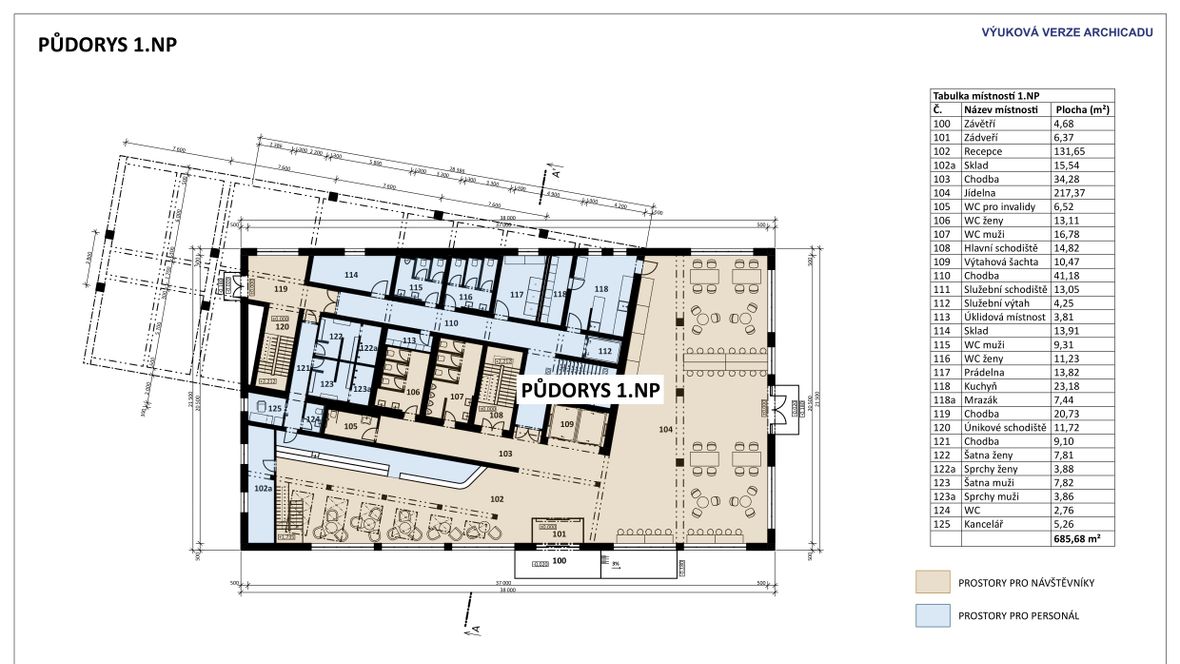
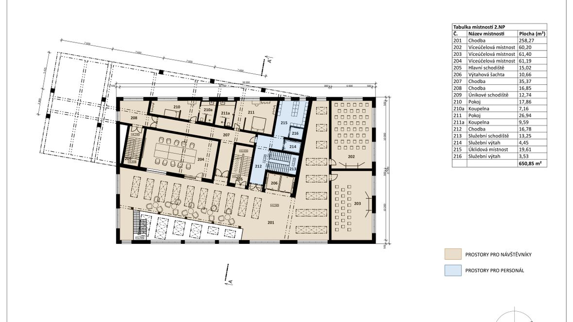
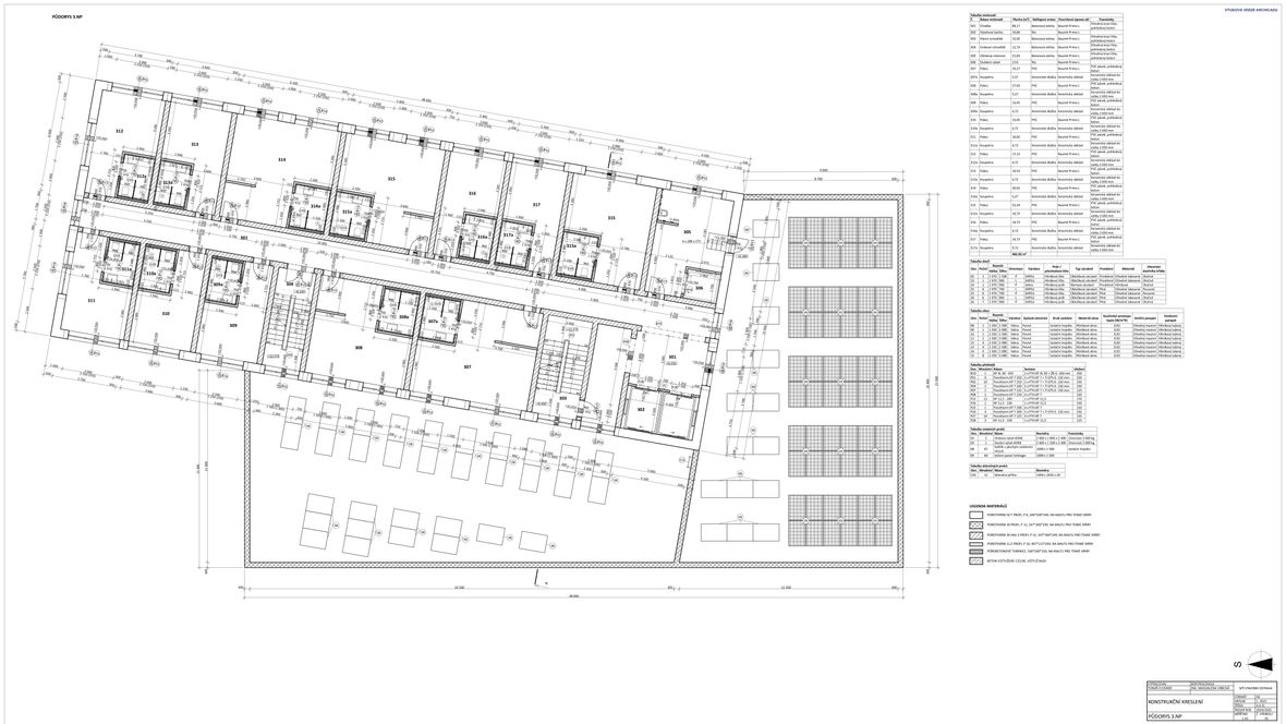
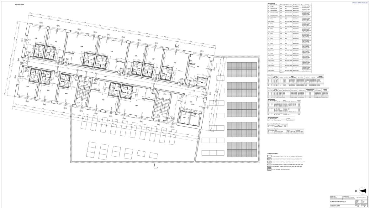
Jedná se o moderní ubytovací zařízení nacházející se v klidném prostředí mimo město, v těsné blízkosti golfového hřiště. Nabízí celkem 26 pokojů s celkovou kapacitou pro 37 osob, z čehož: * 11 dvoulůžkových pokojů * 15 jednolůžkových pokojů Pro společenské a firemní akce jsou k dispozici tři víceúčelové místnosti – dvě větší a jedna menší, které mohou sloužit jako konferenční sály, prostory pro školení či soukromé události. Udržitelný provoz hotelu je řešen pomocí 60 vysokovýtěžných fotovoltaických panelů a tepelného čerpadla (systém vzduch-voda) pro efektivní hospodaření s energiemi. V podzemním podlaží se mimo technické zázemí nachází také baterie s celkovou kapacitou 150 kWh, které jsou rozděleny do 10 vzduchotěsných komor pro maximální bezpečnost při poruše. Zásobování hotelu je rovněž řešeno podzemním patrem, kde se bez problému otočí i větší dodávka. Hotel NOX kombinuje moderní design, klidné prostředí a ekologický provoz, čímž nabízí ideální místo pro relaxaci i pracovní pobyty.



















