21. ročník soutěže King of daylight / Freestyle
Rodinný dům BV
Philip František Endris

Název projektu
Rodinný dům BV
Vedoucí projektu
Philip František Endris
Název školy
Vyšší odborná škola stavební a Střední průmyslová škola stavební Dušní 17, Praha 1
Rok
2025
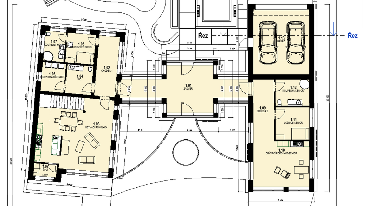
Popis projektu
V 1 NP se v první části nachází bezbariérová obytná jednotka pro prarodiče, vybavená koupelnou, ložnicí a obývacím pokojem s KK. V této časti stavby se také nachází garáž se dvěma střešními okny. Ve hlavní části se nachází pokoj pro hosty s koupelnou, obývací pokoj, jídelna, kuchyň, technická místnost, WC, technická místnost, schodiště do 2NP a spíž. V 1NP mimo objekt v zadní části pozemku je umístěna zimní zahrada a skladovací místnost a v přední části, v předzahrádce, je umístěno venkovní sezení pro deset osob. V 2 NP se nachází knihovna a klavír, ložnice, vybavená soukromou koupelnou a šatnou a dětský pokoj s vlastní koupelnou.








