21. ročník soutěže King of daylight / Freestyle
RD Goodfield
Jakub Klein

Název projektu
RD Goodfield
Vedoucí projektu
Ing. Beáta Kunáková
Název školy
SPSŠ Dušní
Rok
2025
Popis projektu
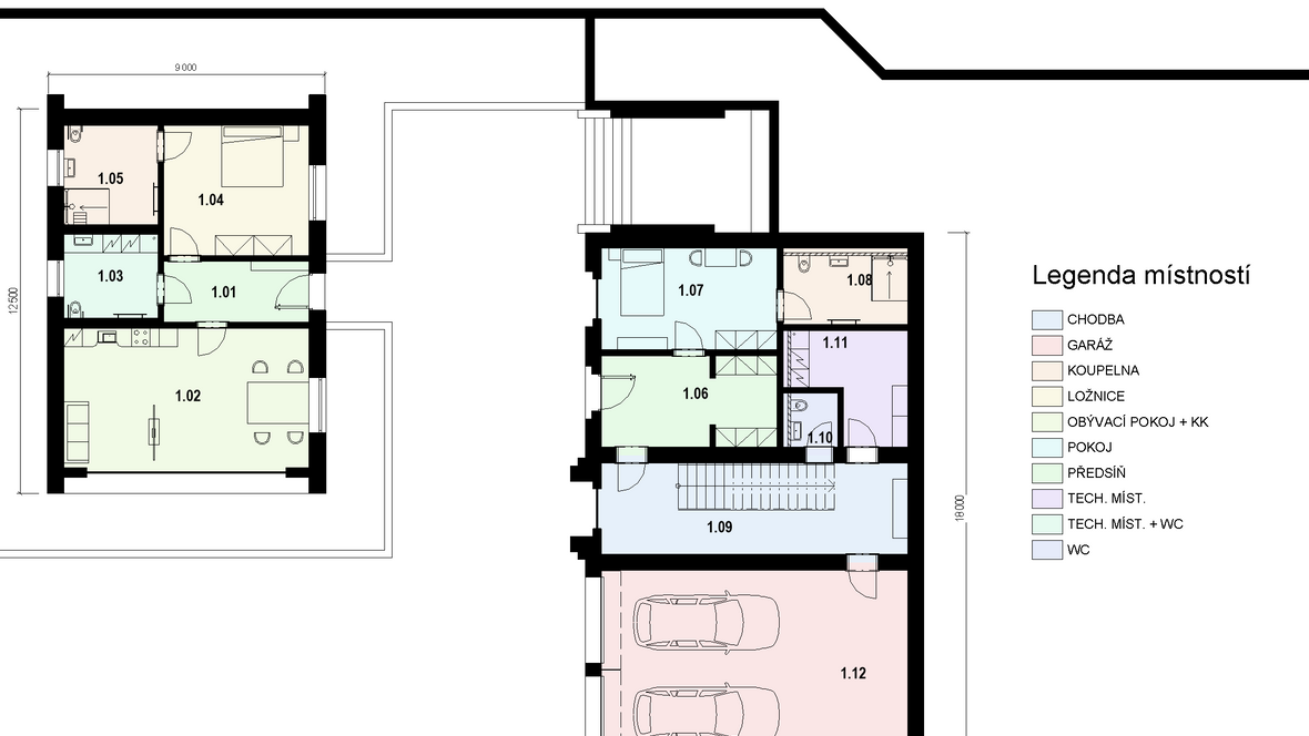
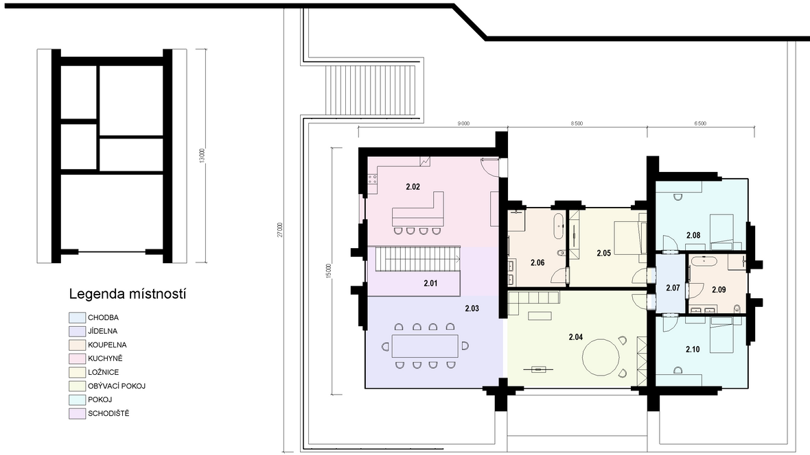
Dvougenerační rodinný dům Goodfiled Novostavba dvougeneračního rodinného domu v obci Dobré Pole u Vitic Architektonickým záměr jsou dvě budovy, které na sobě nezávisle fungují. Umožňují tak příjemné žití více generací s větším pocitem soukromí. Budova B slouží zároveň jako můstek mezi vesnickými statky a moderním budovou A. Ploché střechy objektu A jsou pokryti zelení a obě budovy se snaží splynout s okolím i přes velmi moderní vizáž. Oba objekty mají rozměrné prosklení jižní strany, kde je situovaná zahrada a původní ovocný sad.

















