21. ročník soutěže King of daylight / Rodinný Dům
Pod jednou střechou: Domov a dílna
DAVID ŠANTAVÝ

Název projektu
Vedoucí projektu
Název školy
Rok
Popis projektu
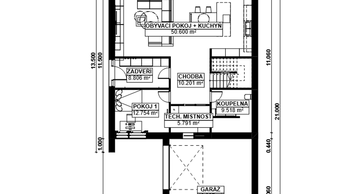
Tento moderní rodinný dům, navržený pro profesionálního automechanika, je ukázkou funkční architektury propojené s přirozeným světlem. Dispozice domu zohledňuje pracovní i soukromý život obyvatele – dominantu tvoří prostorná dvougaráž, která není jen útočištěm pro vozy, ale i dílnou plnou denního světla. Díky velkoformátovým oknům orientovaným na jih a světlíkům je celý prostor zalit přirozeným světlem, což podporuje soustředění, zvyšuje produktivitu a vytváří zdravé pracovní prostředí. Kontrast tmavých rámů s bílou fasádou podtrhuje moderní charakter stavby, zatímco otevřený prostor mezi interiérem a exteriérem zajišťuje plynulé propojení s okolní přírodou. Tento projekt není jen bydlením – je to místo, kde denní světlo hraje klíčovou roli v každodenním životě tvůrce.










