21. ročník soutěže King of daylight / Rodinný Dům
2025
Natálie Křížová

Název projektu
Rodinný dům Solis
Vedoucí projektu
Ing. Arch. Valerie Eliášová
Název školy
Střední škola průmyslová a umělecká Hodonín
Rok
2025
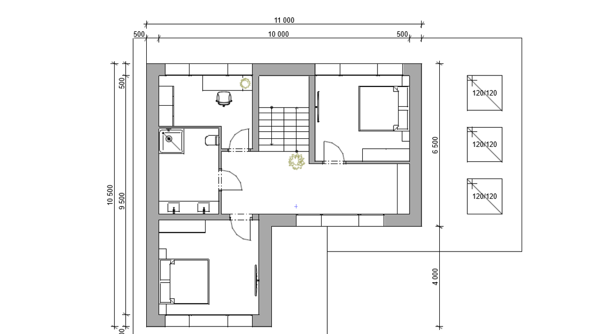
Popis projektu
Rodinný dům Solis je navržen s hlavním cílem maximalizovat přirozené denní osvětlení a vytvořit zdravé a příjemné vnitřní prostředí. Dispozice i architektonické řešení byly navrženy s ohledem na ideální oslunění obytných prostorů. Dům je osazen hlubokými přesahy střechy, které chrání interiér před přehříváním v letních měsících, ale zároveň umožňují nízkému zimnímu slunci pronikat hluboko do interiéru.¨ Denní světlo proniká do interiéru nejen skrze velkoformátová okna, ale i pomocí střešních světlíků. Vnitřní uspořádání je otevřené a propojené, což umožňuje přirozenému světlu volně procházet napříč domem.










