21. ročník soutěže King of daylight / Rodinný Dům
Rodinný dům Casa Luno
Anna Pryglová

Název projektu
Rodinný dům Casa Luno
Vedoucí projektu
Ing. Arch. Valerie Eliášová
Název školy
Střední průmyslová a umělecká Hodonín, příspěvková organizace
Rok
2025
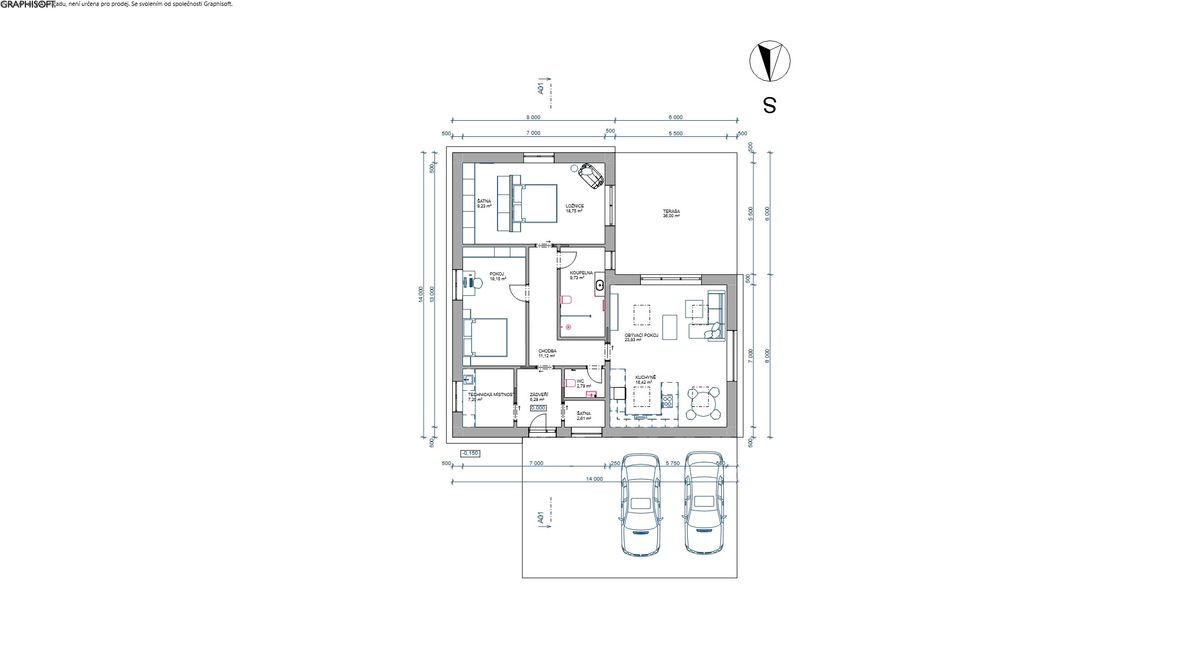
Popis projektu
Rodinný dům Casa Luno je moderní jednopodlažní stavba zasazená do klidného přírodního prostředí. Jeho dominantou je výrazné kruhové okno, které propouští dostatek denního světla a dodává domu jedinečný charakter. Exteriér kombinuje přírodní materiály s čistými liniemi, čímž vytváří harmonii s okolní krajinou. Obytná terasa s vířivkou a posezením poskytuje ideální místo pro odpočinek a propojení s přírodou. Casa Luno je místem, kde se moderní architektura potkává s klidem a pohodou rodinného života.












