21. ročník soutěže King of daylight / Rodinný Dům
Rodinný dům Fusion
Gabriela Jakubíková

Název projektu
Rodinný dům Fusion
Vedoucí projektu
Ing. arch. Tomáš Fischer
Název školy
Střední průmyslová škola stavební, Opava, příspěvková organizace
Rok
2025
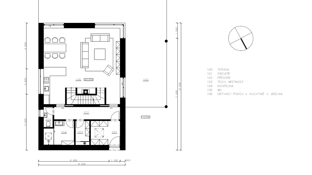
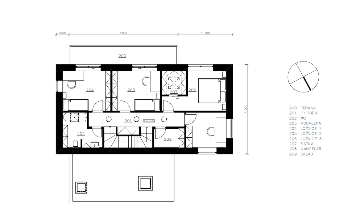
Popis projektu
Hlavní myšlenkou mého návrhu je prolnutí dvou jednoduchých hmot, které společně vytvářejí harmonický a funkční celek. Objekt disponuje dvěma podlažími a klade důraz na energetickou úspornost. Hlavním zdrojem vytápění je tepelné čerpadlo, které je doplněno krbem umístěným v obývacím pokoji, jenž vytváří příjemnou atmosféru a zároveň slouží jako doplňkový zdroj tepla. Pro maximální využití denního světla jsou použity střešní světlíky a světlovody VELUX (světlík s plochým zasklením, světlovod pro ploché střechy), které přirozeně prosvětlují interiér.










