21. ročník soutěže King of daylight / Rodinný Dům
Rodinný Dům Luz
Michael Stehlík

Název projektu
Rodinný Dům Luz
Vedoucí projektu
Ing. arch. Dagmar Zimová
Název školy
Střední průmyslová škola stavební Josefa Gočára
Rok
2025
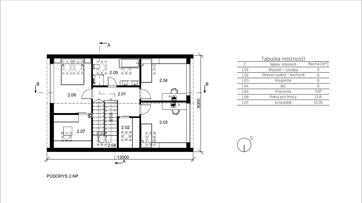
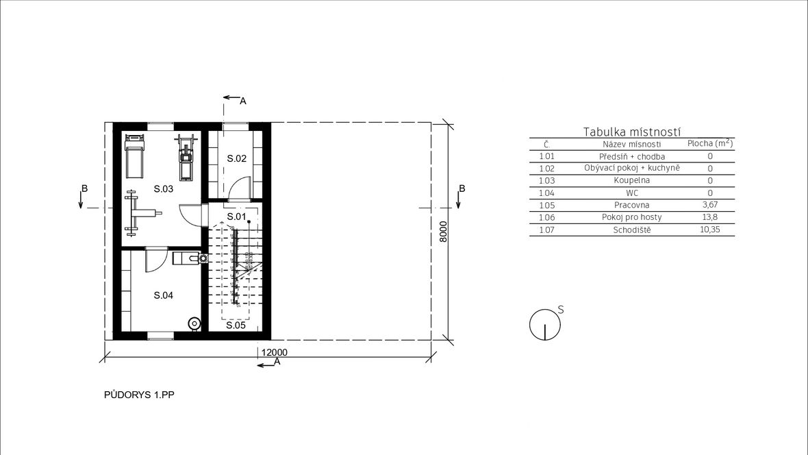
Popis projektu
Architektonická koncepce domu je založena na minimalistickém designu s důrazem na jednoduchost a čisté linie. Stavba je navržena s ohledem na požadavky moderního bydlení, včetně aktuálních standardů komfortu a energetické účinnosti. Klíčovým prvkem jsou velkoformátová okna, která propojují interiér s exteriérem a umožňují přirozené prosvětlení. Střešní okna dále umocňují pocit otevřenosti a vzdušnosti. Celkový koncept vytváří harmonický prostor, který je flexibilní a snadno se přizpůsobí měnícím se potřebám obyvatel, a to bez nutnosti rozsáhlých rekonstrukcí.












