21. ročník soutěže King of daylight / Rodinný Dům
Rodinný dům Boa
Natálie Šujanová

Název projektu
Vedoucí projektu
Název školy
Rok
Popis projektu
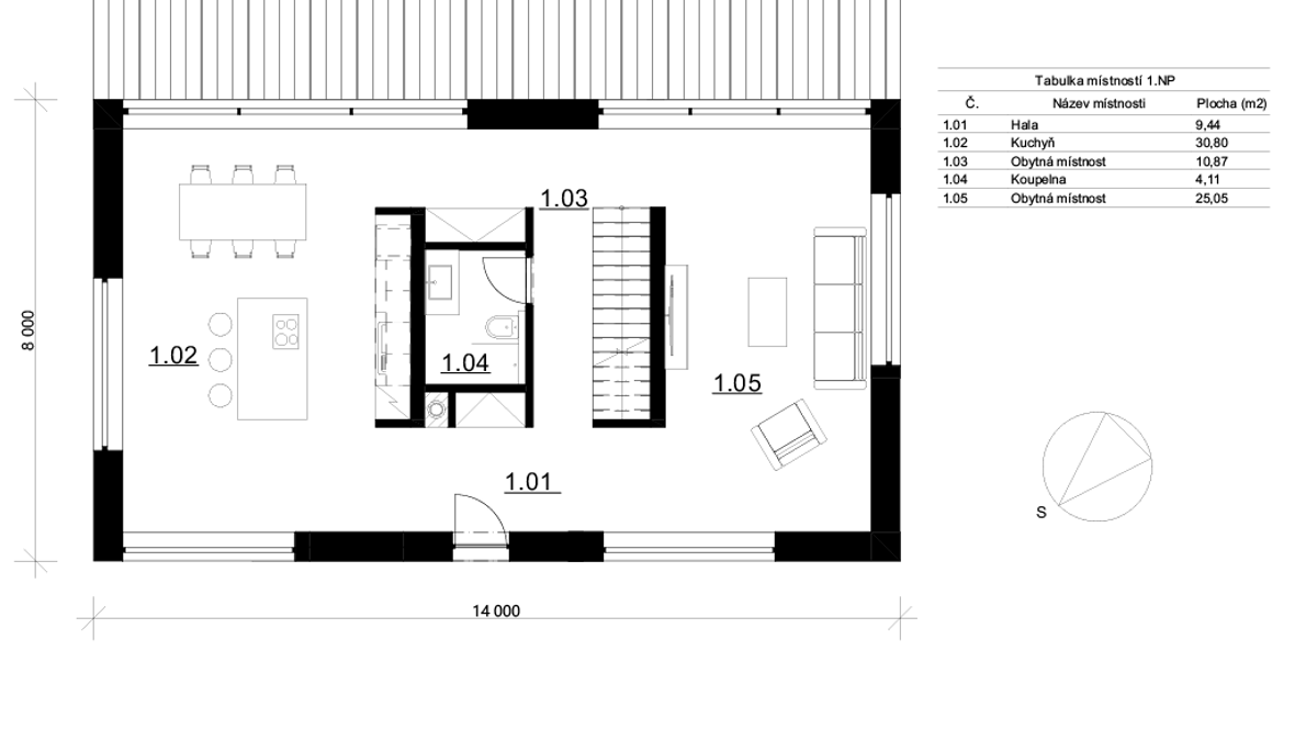
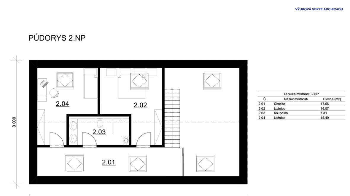
Rodinný dům Boa je navržen v české obci Valeč poblíž Karlových Varů. Dům je koncipován tak, aby do této oblasti co nejlépe zapadnul a byl v souladu s okolní architekturou a přírodou. Dům je zkonstruován z přírodního kameniva, které funguje jako přirozený akumulátor tepla, jenž pomáhá udržovat stabilní vnitřní teplotu a šetří náklady na energie. Zároveň také reguluje vlhkost. Hrubá struktura kamenného zdiva vytváří autentický charakter stavby, která ladí s okolní architekturou a přírodou, a zároveň přináší funkčnost a tradičnost. K propojení interiéru a exteriéru slouží posuvná francouzská okna, která spojují interiér kuchyně a obývacího pokoje s okolní přírodou – či s višňovými sady, které se budou v této lokalitě nacházet. Hlavní obytné místnosti jsou osvětleny francouzskými okny a střešními okny Velux GLL, což místnostem dodává otevřenost a světlost. Prostory jsou tak v harmonii s okolím a vytváří plynulé propojení s venkovním prostředím.

















