21. ročník soutěže King of daylight / Rodinný Dům
Rodinný dům Oneside
Jakub Haninger

Název projektu
Vedoucí projektu
Název školy
Rok
Popis projektu
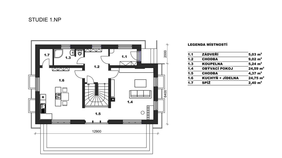
Rodinný dům Oneside je částečně podsklepenou moderní stavbou. V podsklepené části se nachází společenská místnost a skladovací prostory. V přízemí pak prostorný obývací pokoj a kuchyně spojené vlastní chodbou přidávající prostoru propojenost. Jako velkou dominantou rodinného domu se na jižní straně objevuje velká prosklená plocha stojící od přízemí skoro až po hřeben střechy. Venku je poté ještě prostorná veranda a hliníková pergola. V interiéru samotném se přes přízemí až do podkroví objevuje tenká skleněná příčka zároveň fungující jako zábradlí pro samotné schodiště. Dohromady skleněné plochy podporují prosvícení celého objektu přírodním světlem. Dům je koncipován pro rodinu s dětmi, a proto se v podkroví nachází dvě obytné místnosti, prostorná koupelna, oddělený záchod a šatna přístupná z chodby pro všechny členy domácnosti. Vše je prosvětleno množstvím střešních oken řady VELUX Premium pro maximální proslunění.


















