21. ročník soutěže King of daylight / Rodinný Dům
2025
Martin Hladík

Název projektu
Spoluautor projektu
Vedoucí projektu
Název školy
Popis projektu
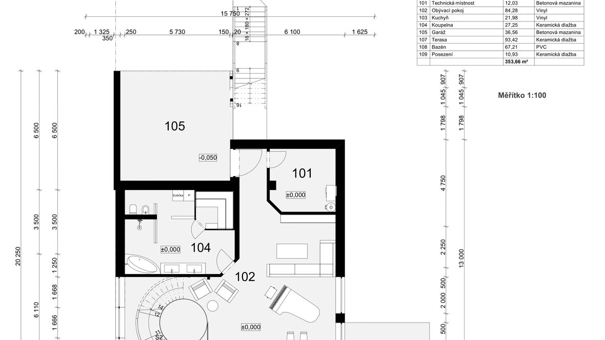
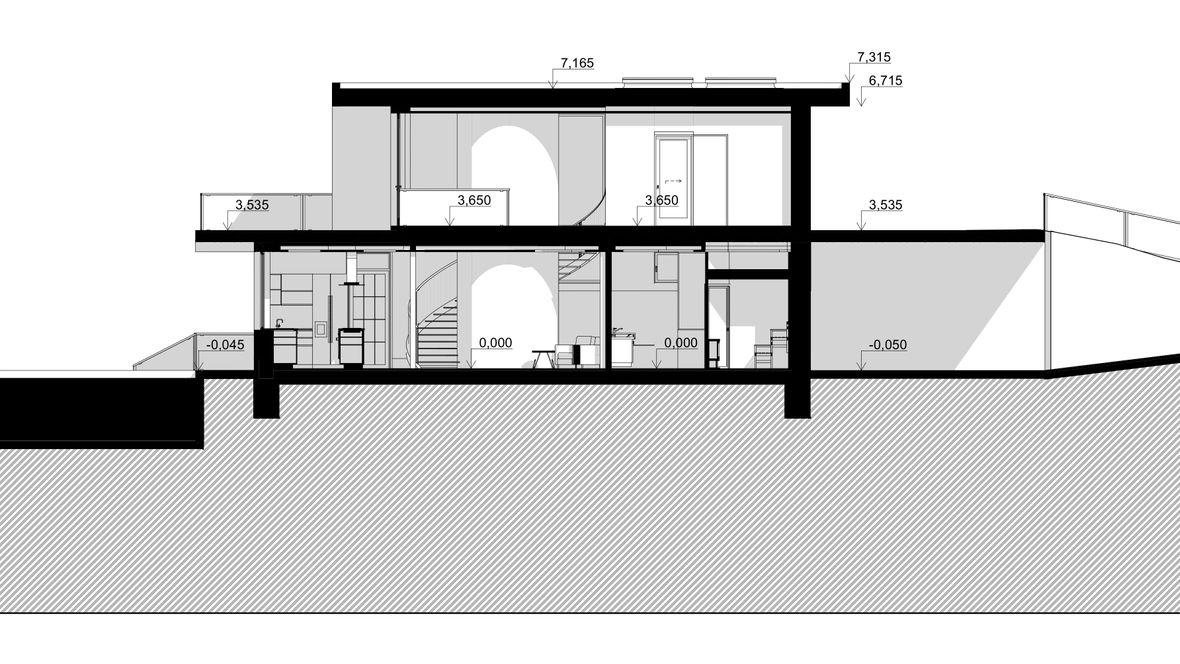
Rodinný dům jsem navrhl jako moderní vilu s velkými okny, díky kterým je krásný výhled do Alpské krajiny a také umožňují dennímu světlu proniknout hluboko do objektu. Na střeše jsou 3 typy střešních doplňků Velux (viz. tabulka objektů). Z jižní strany objektu je bazén, který odráží paprsky slunce směrem do interiéru a tím také přispívá k prosvětlení stavby. Bazén s barem uprostřed, který má na konci přepadovou hranu, působí tak, aby v pohledu plynule přešla vodní hladina na výhled do údolí. Dům jsem navrhl s velkými balkonovými převisy, aby do interiéru nepronikalo v létě nežádoucí teplo, ale v zimě, tím že je slunce níže nad obzorem, paprsky pronikat do interiéru budou. Stavba má také velkou plochu fasády navrženou způsobem zeleně a celá plochá střecha, je také pokryta zelení - přírodní chránění před nežádoucím teplem v létě.













