King of daylight / Freestyle
HORSKÁ CHATA AMUNDSEN
Dubcová Adéla

Název projektu
Vedoucí projektu
Název školy
Rok
Popis projektu
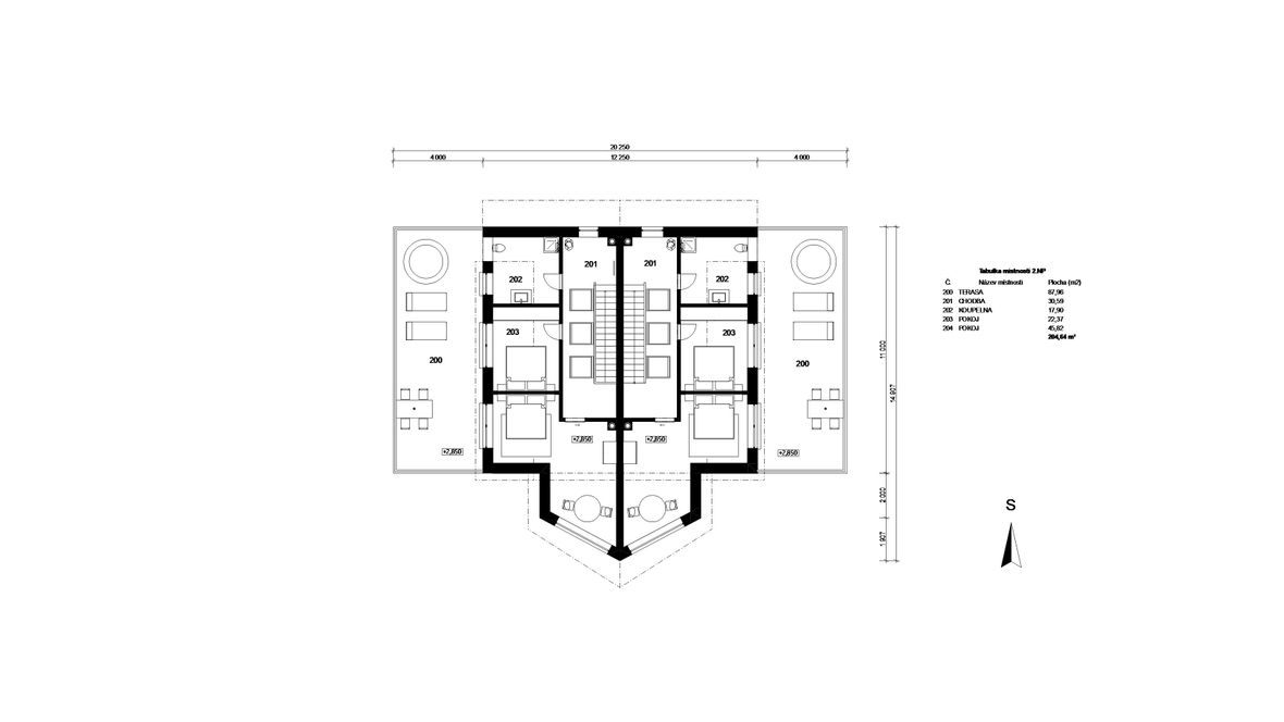
Horská chata Amundsen je dvoupodlažní objekt, rozdělený středovou nosnou zdí na dvě symetrické části. Nabízí dva od sebe oddělené apartmány, určené pro čtyřčlenné rodiny. V 1. nadzemním podlaží se nachází společenská místnost, zakončená šikmou zdí s řadou francouzských oken umožňujících prosvětlení celé místnosti, na tu navazuje jídelna s kuchyní a přístupem na terasu. Na severní straně najdeme vchod se zádveřím s možností přístupu do šatny (možno využít také jako lyžárnu). Šatna je propojena dveřmi s krytým stáním pro auta v exteriéru. Středem chaty vede chodba a schody lemující středovou zeď, vedoucí do 2. nadzemního podlaží. V 2. NP se nachází pokoje a koupelna se vstupem na velkou společnou terasu , s výhledem na okolní krajinu. HLAVNÍ MYŠLENKA: Záměrem bylo vytvořit horskou chatu, symetricky oddělenou na dvě části, s cílem rekreace a odpočinku. Snažila jsem se použít přírodní materiály, kontrast dřeva a kamene v souznění s přírodou.











