King of daylight / Freestyle
Vila AYAME
Anastázie Mikešová

Název projektu
Vila AYAME
Vedoucí projektu
Ing. Arch. František Kabelka
Název školy
SPŠ Stavební Brno
Rok
2021
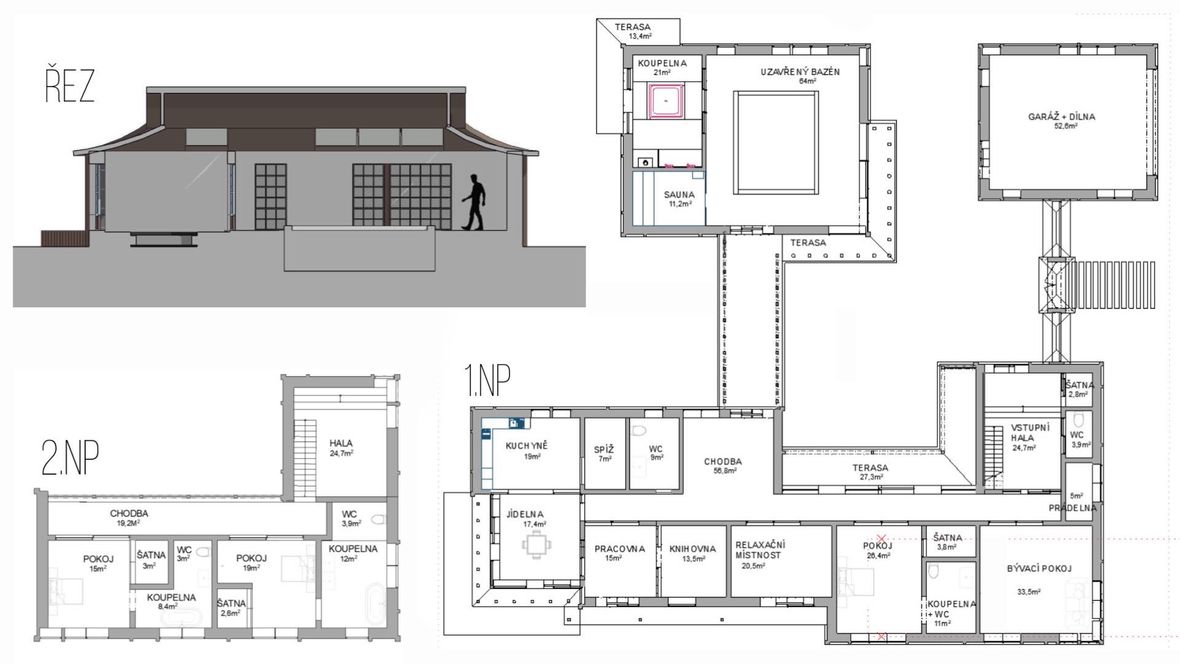
Popis projektu
Vila se nachází v horském prostředí. Je navržena v japonském stylu s klasickou japonskou střechou. Je určena pro více člennou rodinu. Skládá se ze tří budov a to z garáže, obytné části a uzavřeného bazénu s lázněmi a horkými prameny. Bazén a lázně jsou doplněny střešními okny, aby dovnitř pronikalo více slunečního světla. Obytná část se skládá ze dvou podlaží. V 1.NP se nachází vstupní hala se šatnou a WC, prádelna, obývací pokoj, pracovna s knihovnou, relaxační místnost, kuchyně s jídelnou a ložnice se šatnou a koupelnou. V 2. NP najdeme dvě ložnice se samostatnou šatnou a koupelnou. Vila je převážně z betonu s dřevěnými detaily a sloupky doplněna o velká mřížkovaná okna.














