King of daylight / Freestyle - 3. místo
Multifunkční dům Humpolec
Bára Zachariášová

Název projektu
Vedoucí projektu
Název školy
Rok
Popis projektu
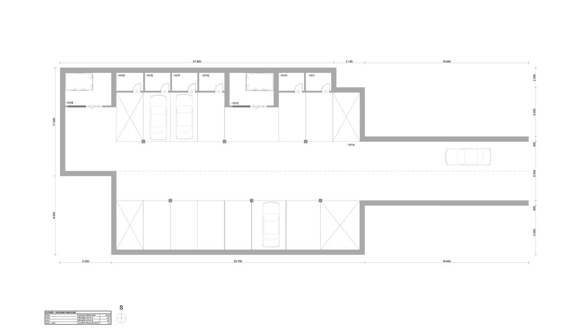
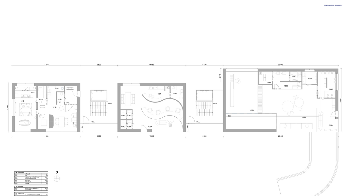
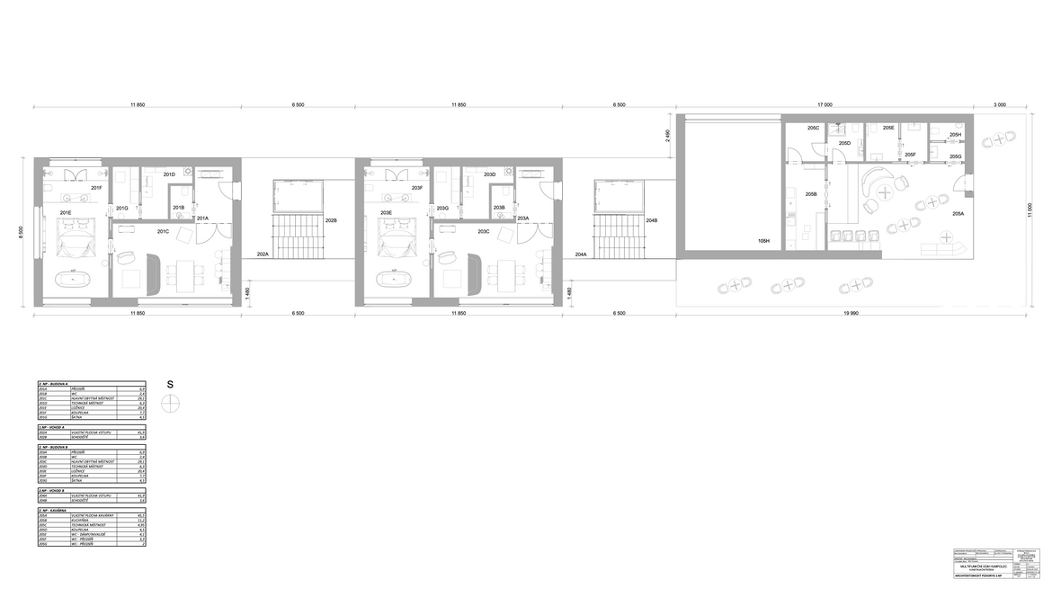
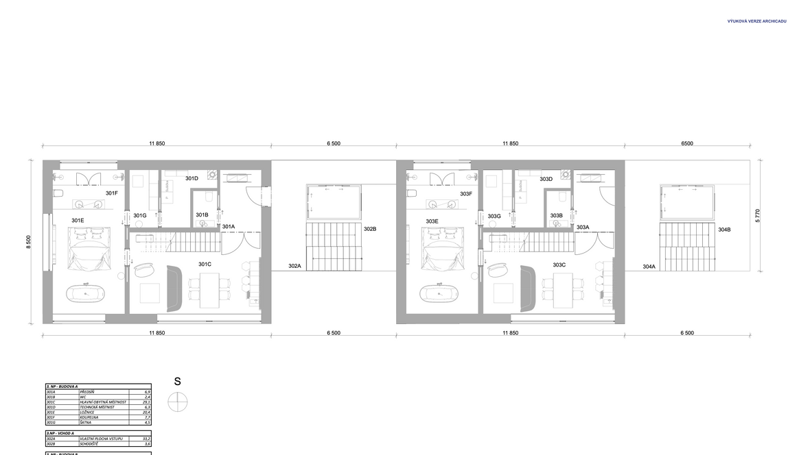
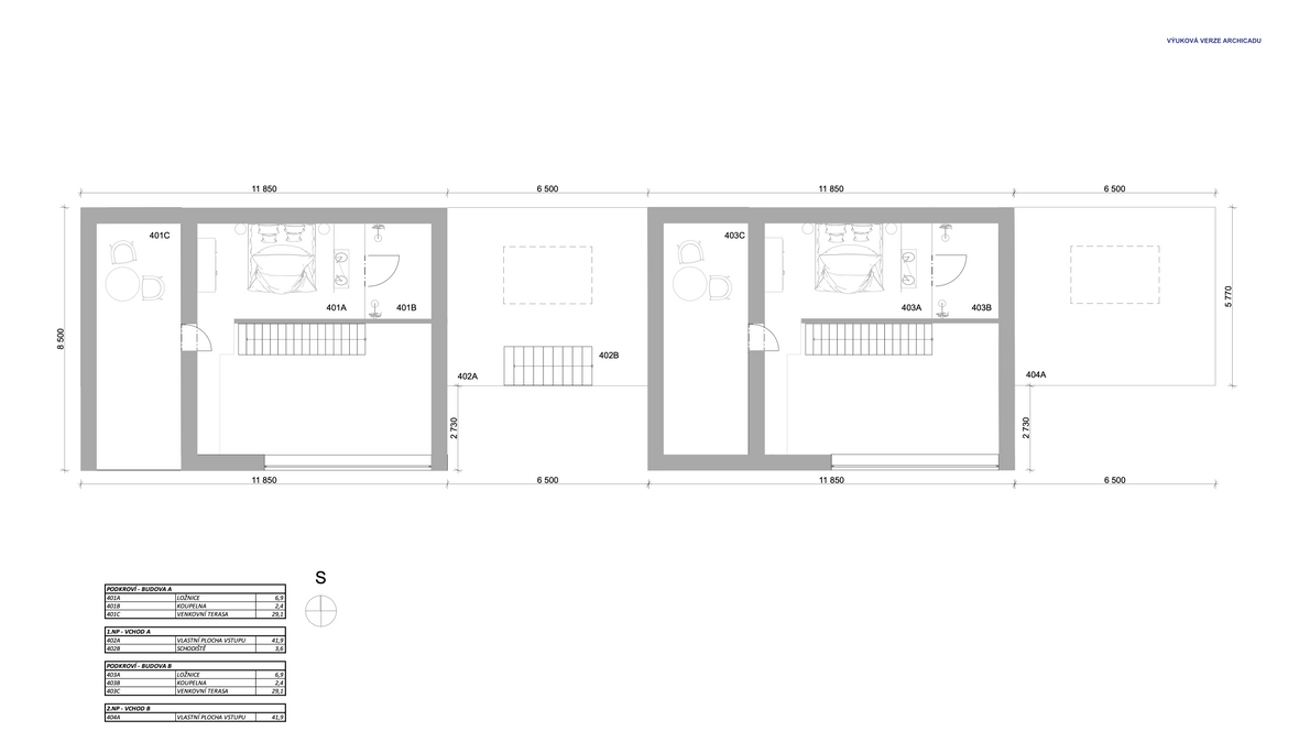
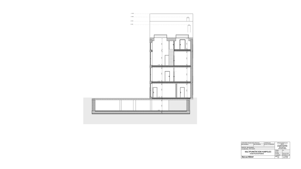
Navrhovaný projekt multifunkčního domu Humpolec se nachází v poklidné části v blízkosti centra města Humpolec v okolní zástavbě novými rodinnými domy. Z hlediska své multifunkčnosti je rozdělen do několika částí – najdeme tu dvě budovy pro bydlení disponující pěti bytovými jednotkami, kancelář a také budovu mateřského centra a kavárny nacházející se nad ním. Objekt je na pozemku umístěn v severní části, čímž se spolu s veškerým děním, které kolem něj v popředí vzniká, ať již jsou přístupové cesty pro pěší, zóna pro rezidenty v západní části nebo část spadající mateřskému centru v části východní, otevírá části jižní. Fasáda se z největší části skládá z pohledového betonu a to na obou budovách pro bydlení, je tu také velké využití prosklených ploch, kde můj záměr byl objekt více otevřít a interiér spojit s okolím. Na budově mateřského centra a kavárny ležící nad ním, je použita venkovní omítka bílé barvy. Celý objekt je také plný zeleně a to na přilehlých balkoncích a zelených střechách. Ozvláštnění najdeme v dřevěném obložení jižní strany a v měděných doplňcích. Interiéry jsou navržené ve světlých, tak i tmavších teplých barvách v kombinaci s velkým množstvím dřevěných doplňků.


















