King of daylight / Freestyle
Multifunkční dům Humpolec
Bořek Svoboda

Název projektu
Multifunkční dům Humpolec
Vedoucí projektu
Ing. arch. Vít Wasserbauer
Název školy
Střední průmyslová škola stavební akademika Stanislava Bechyně, Havlíčkův Brod, Jihlavská 628
Rok
2020
Popis projektu
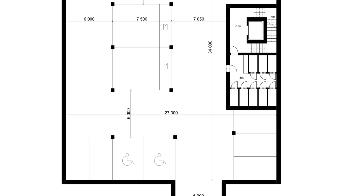
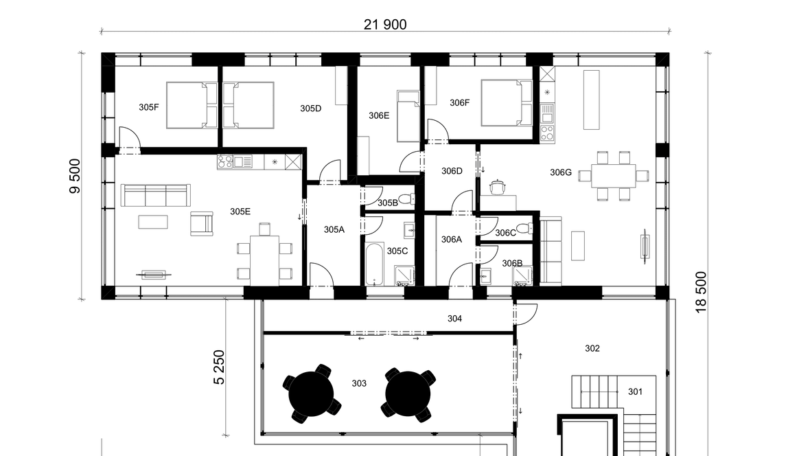
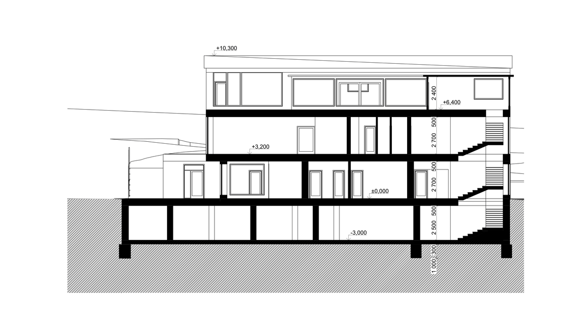
Multifunkční dům Humpolec. Součástí objektu jsou podzemní garáže, mateřské centrum, bageterie, byty ve dvou patrech, komplex kanceláří. Určité byty a kanceláře využívají světlíků. Objekt má nádvoří, dětské hřiště, moderní park a zelené plochy pro relaxaci. moderní styl stavby doplňuje odskočení druhého podlaží od prvního. Barvy objektu jsem požil černé, šedé a bílé, s menším použitím jiných doplňkových barev.













