King of daylight / Freestyle
Multifunkční dům Humpolec
Matěj Tůma

Název projektu
Multifunkční dům Humpolec
Vedoucí projektu
Ing. Arch. Vít Wasserbauer
Název školy
Střední průmyslová škola stavební akademika Stanislava Bechyně, Havlíčkův Brod, Jihlavská 628
Rok
2021
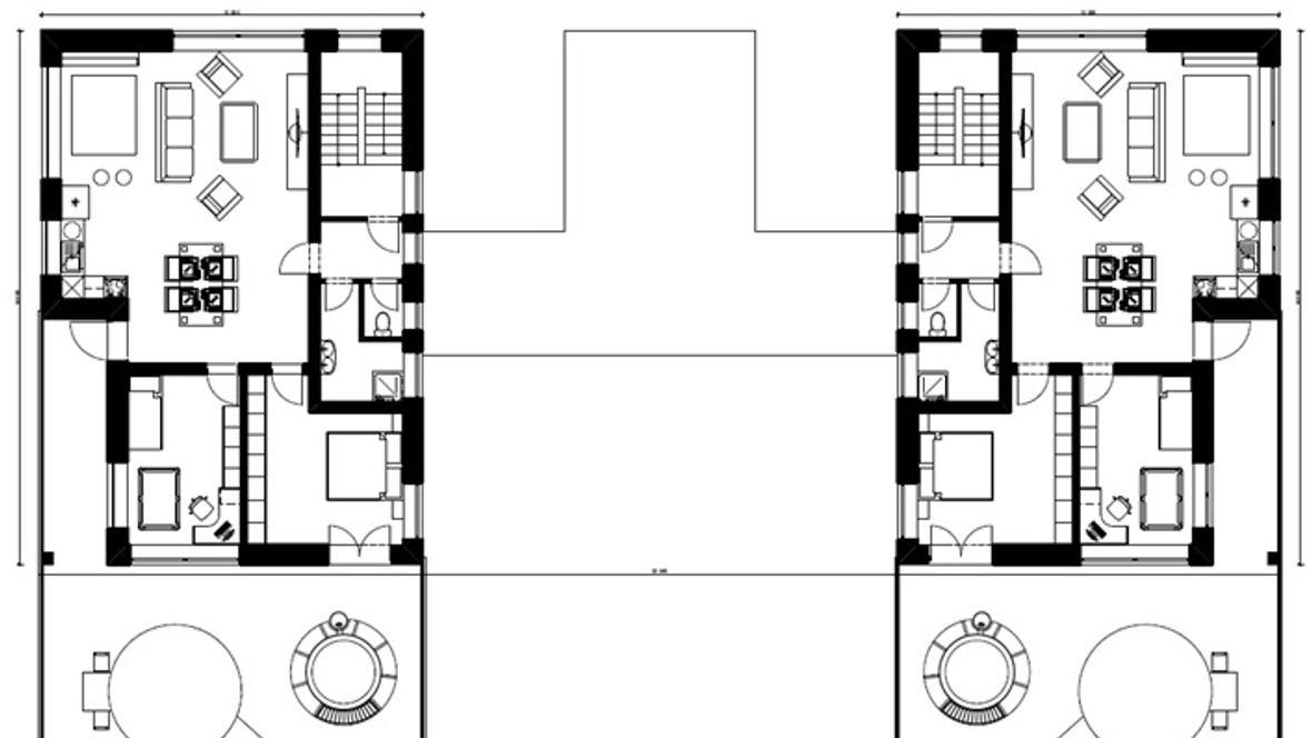
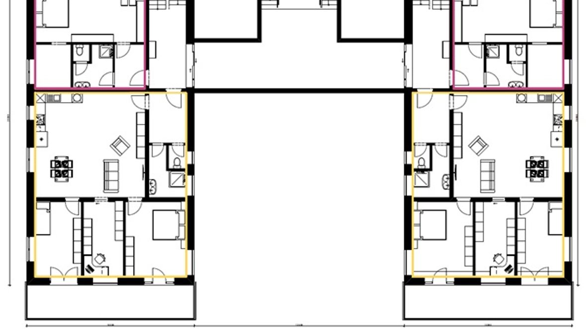
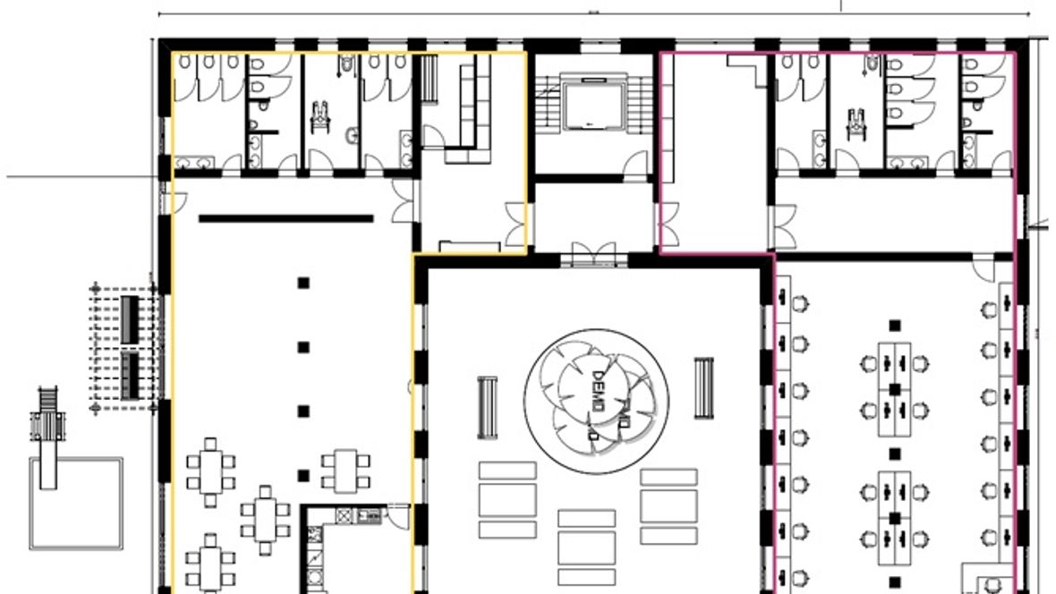
Popis projektu
Za úkol jsme dostali vymyslet mateřské centrum v Humpolci, projekt má sloužit jako víceúčelová budova pro místnost s dětmi (místo pro hraní) a další účel (dle našeho výběru, volil jsem internetovou kavárnu) zbytek budovy má být určen jako bytová jednotka. Parcela se nachází v klidné části města Humpolec na ulici Blanická s parcelním číslem 825/86. Volil jsem proto lehký vzhled budovy s obklady s bílými cihlami které doplňuje lehký dřevěný obklad.












