King of daylight / Rodinný Dům
RD Helis
Jolana Halačková

Název projektu
Vedoucí projektu
Název školy
Rok
Popis projektu
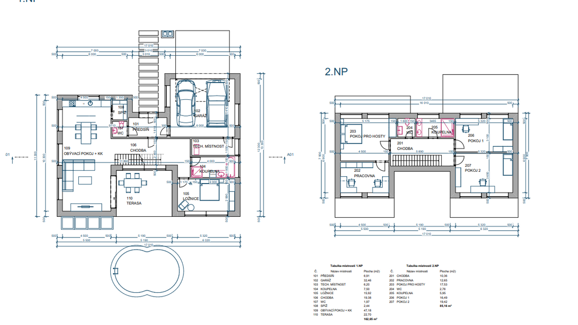
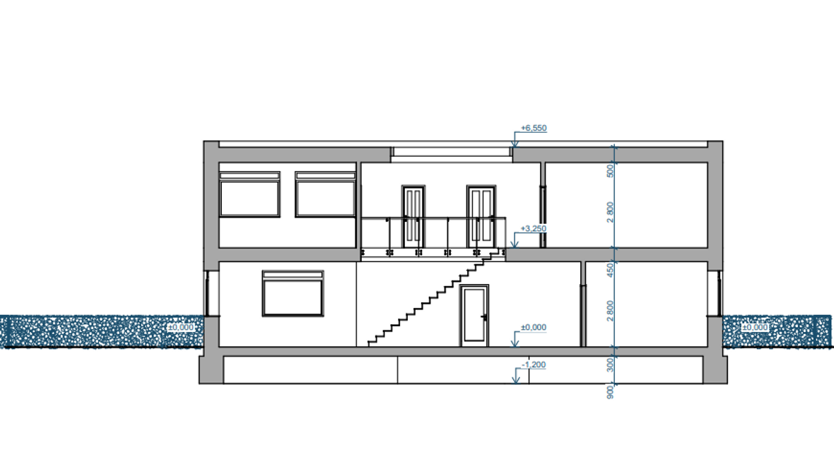
Rodinný dům Helis je vzdušná prostorná stavba určena pro čtyřčlennou rodinu. Objekt má netradiční tvar písmene H a plochou střechu s vegetací nad několika místy v 1.NP, je rozdělen na dvě nadzemní podlaží. V prvním podlaží se nachází v levé části kuchyňský kout spojený s obývacím pokojem, z kterého vede průchod přímo na terasu. Klidová zóna pak zaujímá pravou část, kde je z ložnice velkými okny výhled do zahrady. V pravé části je pak ještě umístěna koupelna, technická místnost a garáž, z níž se vchází do předsíně. Do 2.NP vede schodišťové rameno, na které dopadá denní světlo čtyřmi vedle sebe osazenými VELUX světlíky s plochým zasklením. Chodbou se dostaneme do dvou dětských pokojů a jednoho pokoje pro hosty s pracovnou, koupelny a WC. Na fasádu je použita hrubá vápenná omítka bíle barvy, která je doplněna o šedivý venkovní obklad.







