King of daylight / Rodinný Dům
Aspect
Eliška Ševčíková

Název projektu
Aspect
Vedoucí projektu
Jana Leischnerová
Název školy
SPŠ Stavební Brno
Rok
2021
Popis projektu
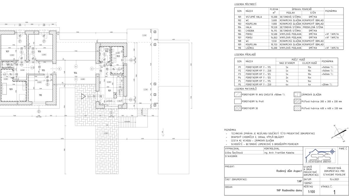
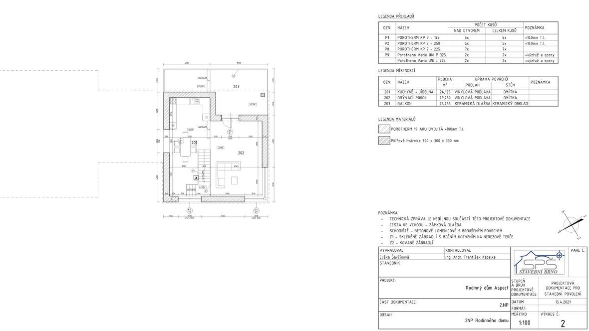
Aspect je rodinný dům atypického tvaru, který je inspirován svahy v horách. RD je ale vhodný i do měst, díky zvolení základních barev a zeleni, kterou dům obklopuje. Aspect je rozdělen na denní a noční část, které odděluje prosklená chodba s vstupem do zahrady. V suterénu je umístěna velká garáž až pro dvě auta, ze které se schodištěm dostaneme do hlavní chodby. Odtud už navazuje denní část s technickou místností, toaletou a o další patro víc až do kuchyně s obývacím pokojem. Noční část nám poskytuje další koupelnu, toaletu a tři pokoje.












