King of daylight / Rodinný Dům
RD Sojka
Martin Skovajsa

Název projektu
RD Sojka
Vedoucí projektu
Martin Skovajsa
Název školy
Střední průmyslová škola stavební Brno, příspěvková organizace
Rok
2021
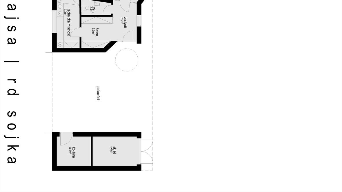
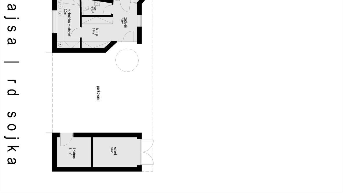
Popis projektu
Projekt rodinného domu pro čtyř člennou rodinu. Dispozice 4+kk se samostatný přístavkem sloužící pro sklad zahradních potřeb a jako kolárna. Svislé nosné konstrukce tvoří železobetonové sendvičové zdivo, z exteriéru je beton pohledový. Vodorovné nosné konstrukce a střešní konstrukce jsou navrženy jako železobetonové sendvičové monolitické desky. Kromě pohledového betonu se na fasádě nachází kamenný a dřevěný obklad. Okenní výplně tvoří hliníko-dřevěná okna. Střešní okna Velux jsou navržena v obytném prostoru v šikminách střešní konstrukce pro prosvětlení interiéru v celé hloubce. Světlíky Velux jsou navrženy v koupelnách a atypický kruhový světlík v exteriéru nad hlavním vchodem do objektu.












