Rodinný dom
Maxvel
Zuzana Chovanová

Názov projektu
Maxvel
Vedúci projektu
Ing. arch. Mária Brondošová
Názov školy
SPŠSaG, Drieňová 35, Bratislava
Rok
2021
Opis vášho projektu
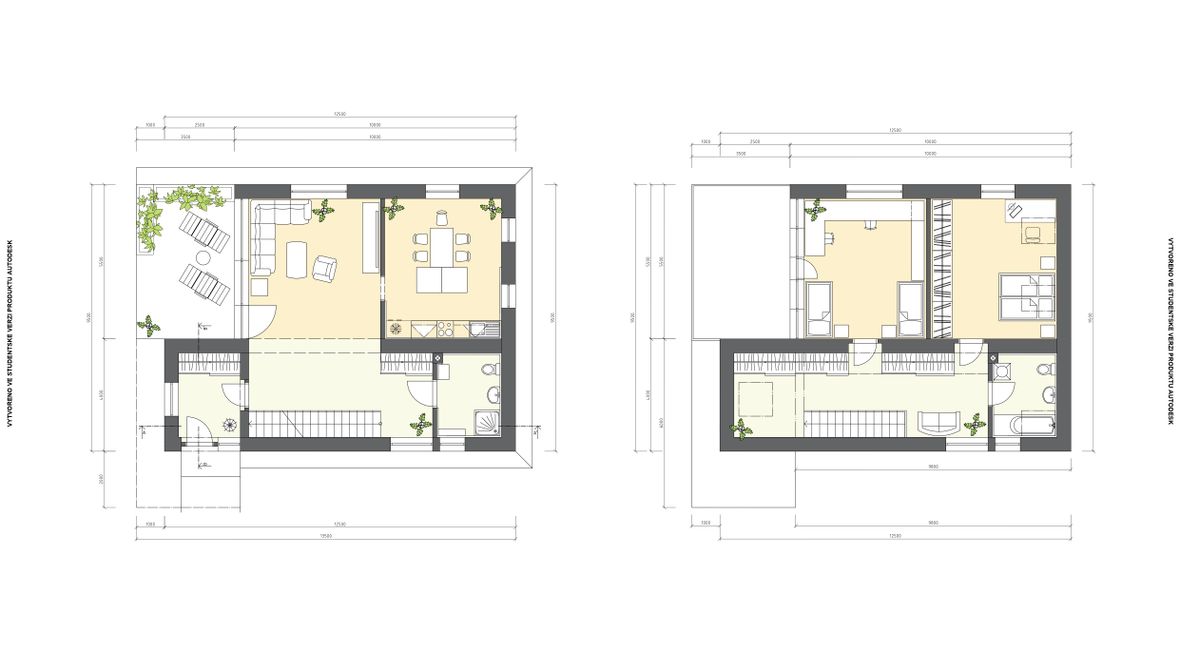
Rodinný dom Maxvel je samostatne stojaca stavba. Je rozdelený na dennú zónu, na prvom nadzemnom podlaží, a nočnú zónu na druhom nadzemnom podlaží. V podkroví sa nachádza miestnosť vhodná na relaxáciu. K domu je pristavaná terasa so zastrešením, ktoré sa z druhého poschodia využíva ako veľký balkón. Ako obklad vonkajšej fasády je použité drevo, ktoré sa taktiež nachádza aj na podlahách väčšiny miestností a terase, i balkóne. Objekt má sklonitú strechu, v ktorej sa nachádza viacero strešných okien Velux na presvetlenie aj vetranie. Celková stavba pôsobí priestranne, vzdušne a presvetlene. Je vhodný pre menšiu rodinu.













