Rodinný dom
Rodinný dom Elendir
Surmaj Dušan

Názov projektu
Vedúci projektu
Názov školy
Rok
Opis vášho projektu
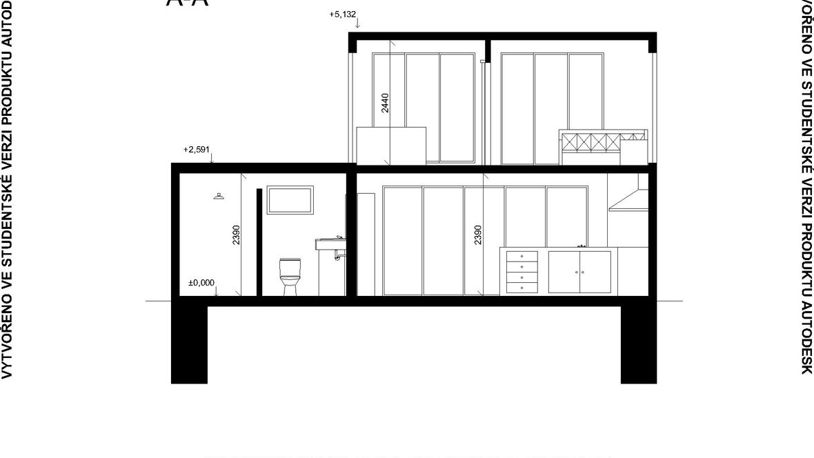
Rodinný dom Elendir je dvojpodlažný rodinný dom pre 4 člennú rodinu. Zaujímavosťou je, že pre kostru domu je použitých 6 nepoužívaných lodných kontajnerov na ktorých je urobená izolácia a povrchová úprava. Materiály použité na rodinnom dome sú moderné a ekologické k prostrediu. V objekte nájdeme 2 spálne, 2 kúpeľne a obývaciu izbu spojenú s kuchyňou. Na rodinnom dome je navrhnutá terasa a zelená strecha. Na 1NP nájdeme spálňu s kúpeľňou, obývaciu izbu a kuchyňu. Pomocou schodiska sa dostaneme na 2NP, kde chodba je využitá ako obývacia izba. Ďalej tu je hosťovská izba s kúpeľňou. Z hosťovskej izby je vstup na terasu a z chodby je vstup na zelenú strechu. Na povrchové úpravy je použitý keramický obklad, omietka a kamenný obklad s imitáciou dreva. Na podlahy sú navrhnuté prevažne drevené parkety a keramická dlažba. Vnútorné steny sú navrhnuté z pórobetónových tvárnic.















