Rodinný dom - Odmena
Rodinný dom Artem
Marek Šteliar

Názov projektu
Rodinný dom Artem
Vedúci projektu
Mária Brondošová
Názov školy
SPŠ stavebná a geodetická v Bratislave
Rok
2021
Opis vášho projektu
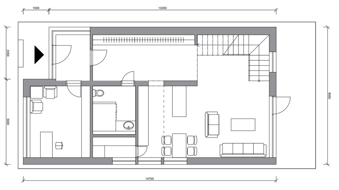
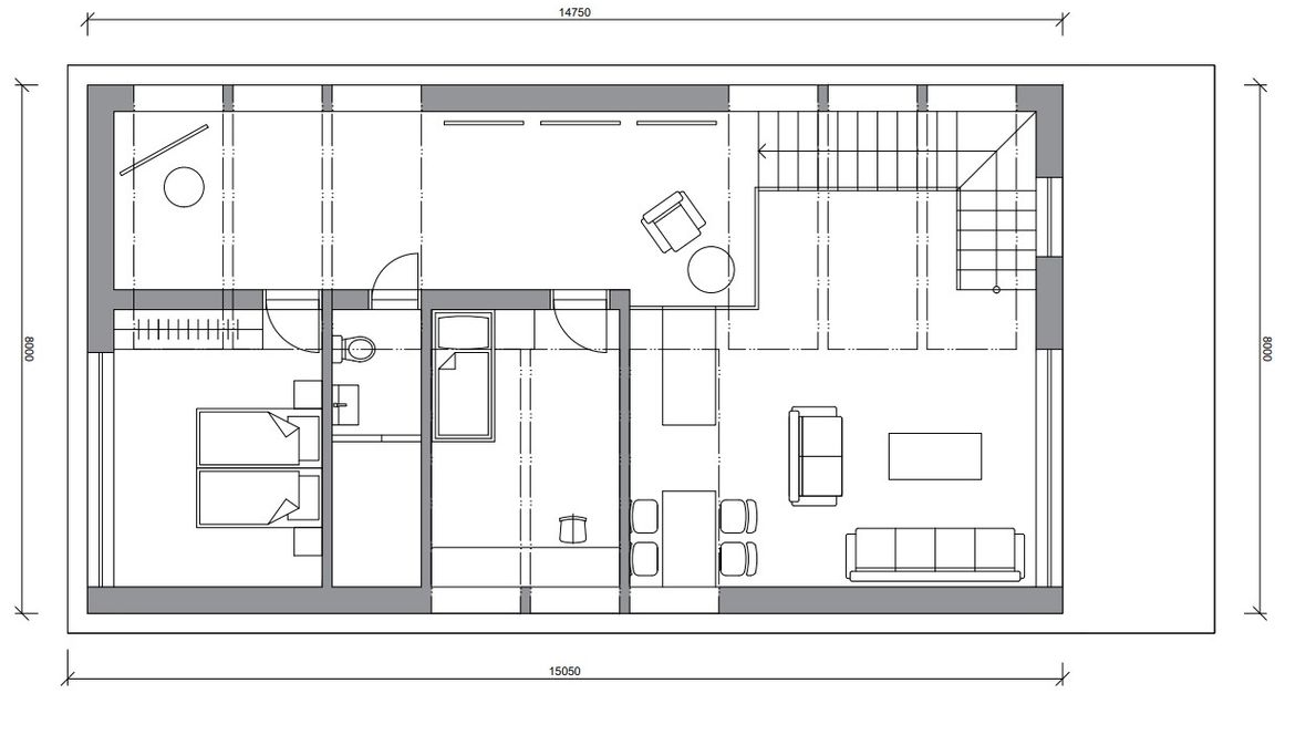
RODINNÝ DOM ARTEM JE RIEŠENÝ AKO DOM PRE UMELCOV, ALEBO MLADÚ TROJČLENNÚ RODINU. DOM JE ROZDELENÝ NA DENNÚ ZÓNU NA PRÍZEMÍ A NOČNÚ ZÓNU S ATELIÉROM NA POSCHODÍ. ARTEM JE DOSTATOČNE PRESVETLENÝ VĎAKA VEĽKÉMU MNOŽSTVU OKIEN A SPĹŇA VŠETKY SVETELNÉ POŽIADAVKY. DOM DISPONUJE 2 KÚPELŇAMI S WC, PRACOVŇOU, SPÁLŇOU A PRIESTOROM NA ATELIÉR. DOM VĎAKA SVOJMU JEDINEČNÉMU ALE NENÁPADNÉMU RIEŠENIU ZAPADNE DO PROSTREDIA PREDMESTSKEJ ŠTVRTE.









