Rodinný dom
Rodinný dom Tommy
Klaudia Zatkovská

Názov projektu
Vedúci projektu
Názov školy
Rok
Opis vášho projektu
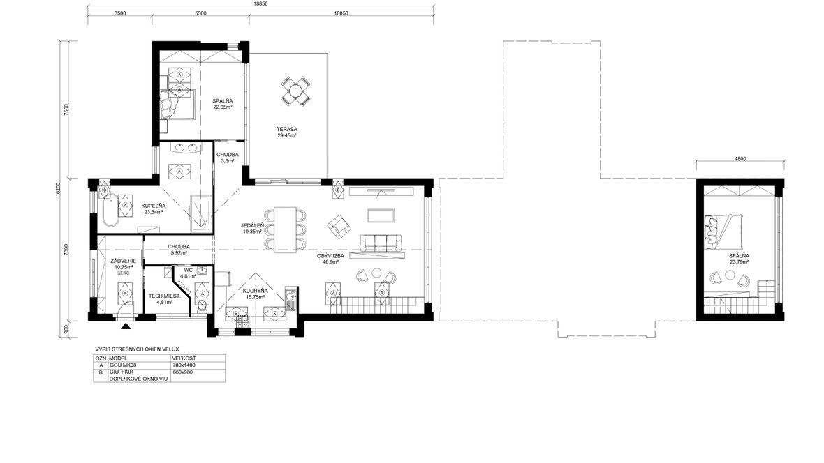
Rodinný dom Tommy má byť pre svojich obyvateľov miestom pohodlia, bezpečia, jedinečnosti, majestátnosti a svetla. Má to byť miesto, ktoré je zároveň otvorené a priateľské pre kruh rodiny a priateľov, a zároveň má vzbudzovať dojem súkromia a dôveryhodnosti. Veľký otvorený spoločenský priestor zaručuje prepojenie členov domácnosti, ich vzájomnú otvorenosť a pocit domova. Spálne, ktoré sú súkromnou časťou nie len tohto domu sme navrhli tak, aby vzbudzovali dojem bezpečia a súkromia. Okná navrhnuté v týchto izbách sú navrhnuté tak, aby prepúšťali svetlo len z vonkajšej strany a tak bude zachované súkromie. Nerozdeľovali sme dom zbytočnými priečkami, zato sme pri rozdeľovaní priestoru používali skôr zariaďovacie predmety, ktoré nám priestor dostatočne predelili, no majestátnosť priestoru ostala zachovaná. Dom má orientovaný vstup na severozápad a terasu na juhovýchod. Je situovaný do terénu kvôli podzemnému podlažiu, na ktorom sa nachádza hlavná spálňa. Pri navrhovaní domu sme nemysleli len na dispozíciu priestorov, ale taktiež na osvetlenie domu, ktoré je z primárnej časti riešené oknami a tiež strešnými oknami značky Velux.

















