Rodinný dom
SENTILLEZ
Timea Grivalská

Názov projektu
SENTILLEZ
Vedúci projektu
ING. ARCH. M. BRONDOŠOVÁ
Názov školy
Stredná priemyselná škola stavebná a geodetická, Bratislava
Rok
2020/2021
Opis vášho projektu
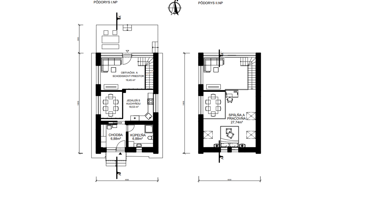
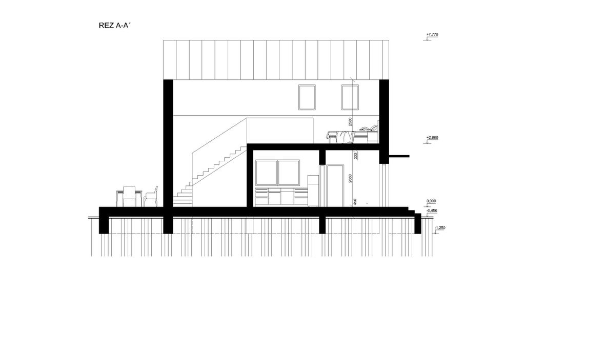
HLAVNÁ MYŠLIENKA: Môj hlavný zámer bolo vytvoriť jednoduchý, nízkoenergetický, príjemný, menší víkendový dom vhodný pre dvoch. Je určený na menší a užší pozemok v mestskej alebo prímestskej zástavbe. SENTILLEZ je dvojpodlažný. Na prvom podlaží je denná zóna a na druhom podlaží sa nachádza nočná zóna. Presvetlenie a prevzdušnenie výrazne napomáhajú veľkoformátové okná na celej južnej fasáde a strešné okná VELUX GGL MK06 SD5N2.









