14. ročník súťaže Rodinný Dom
Rodinný dom s rôznymi skonmi strechy
Marek Húlek

Názov projektu
Spoluautor projektu
Vedúci projektu
Názov školy
Rok
Opis vášho projektu
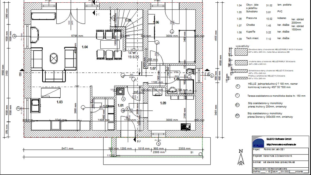
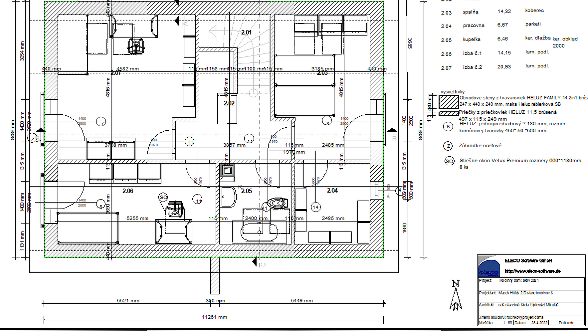
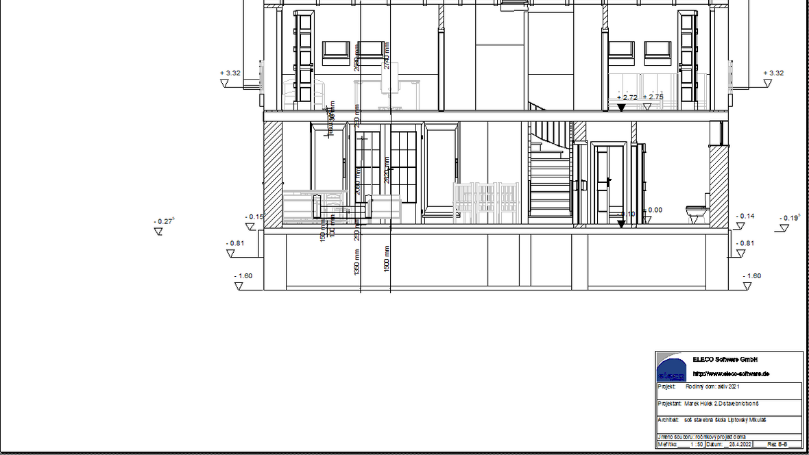
Objekt rodinného domu je situovaný v časti obce Liptovský Mikuláš na pozemku investora. Terén pozemku je členený , pôvodne orná pôda. Pozemok s parcelným číslom 1140 patrí do katastrálneho územia kraj Žilinský okres Liptovský Mikuláš obec Liptovský Mikuláš Katastrálne územie k.ú. Palúdzka Prístup na pozemok je priamy z obecnej komunikácie. Vstup do domu je riešený z východnej strany. Prehľad súhrnných údajov: Zastavaná plocha : 125,52 m2 Obostavaný priestor : 706.15 m3 Úžitková plocha : 149,85 m2 Základy pod zvislými nosnými konštrukciami sú navrhnuté základové plošné pásy šírka 400, 540 mm, 200 z prostého betónu C 12/15. V hornej časti sú spriahnuté základovou doskou hrúbka 150mm z oceľobetónu C 20/25. Základová škára je navrhnutá v týchto hĺbkach -1,600 a -0,810m od nulového bodu objektu, ktorým je úroveň podlahy prízemia. Základové pásy v rôznych hĺbkach sú od dilatovanie asfaltovými pásmi. Konštrukčne je rodinný dom navrhnutý ako murovaný z obvodových tvaroviek HELUZ FAMILY 44 2in1 brúsená 247 x 440 x 249 mm . Vnútorné nosné steny tvorí murivo z tvaroviek HELUZ 17,5 brúsená 497 x 175 x 249 mm a HELUZ FAMILY 30 brúsená 247 x 300 x 249 mm. Priečky sú navrhnuté z priečkoviek HELUZ 11,5 brúsená 497 x 115 x 249 mm. Na prízemí sú navrhnuté 3 stĺpy - stĺp oceľobetónový monoliticky prierez kruhový 200mm, omietnutý – 1 ks a Stĺp oceľobetónový monoliticky prierez štorcový 300x300 mm, omietnutý – 2 ks. V objekte je navrhnutý 1 komín: HELUZ jedno prieduchový priemeru 180 mm, rozmer komínovej tvarovky 450* 50 *500 mm. Objekt je zastrešený je nepravidelnou sedlovou strechou so sklonmi 30° a 45° stupňov. Konštrukcia strechy je tvorená hambálkovým krovom s upraveným podhľadom. Vstup do objektu je chránený drevenou pultovou strieškou zo sklonom 5°. Navrhnutá je strešná krytina betónová škridla Bramac štandard pálená čierna. Podkrovie je zastrešené strešnými oknami Velux Premium rozmermi 660*1180 mm a 8ks. Odkvapový systém je navrhnutí Bramac – oceľový pozinkovaný plech.







