14. ročník súťaže Rodinný Dom
Dom s terasou
Šimon Janky

Názov projektu
Spoluautor projektu
Vedúci projektu
Názov školy
Rok
Opis vášho projektu
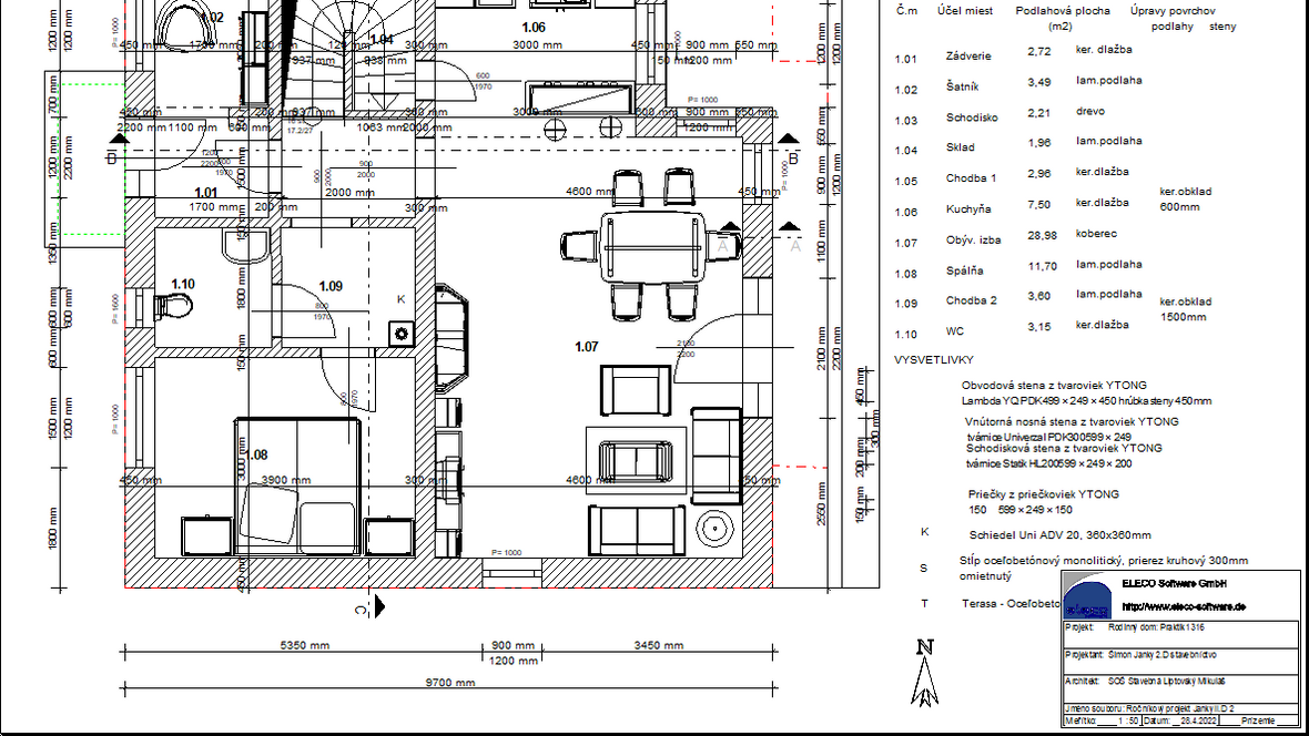
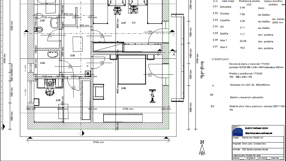
Objekt rodinného domu je situovaný v časti obce Hubová na pozemku investora. Terén pozemku je členitý, pôvodne orná pôda. Pozemok s parcelným číslom 1022/9 patrí do katastrálneho územia Hubová Prístup na pozemok je priamy z obecnej komunikácie. Vstup do domu je riešený z juhozápadnej strany. Prehľad súhrnných údajov: Zastavaná plocha : 109.76m2 Obostavaný priestor : 697.03 m2 Úžitková plocha : 138.7 m2 Konštrukčne je rodinný dom navrhnutý ako murovaný z tvaroviek YTONG Lambda YQ PD 499 × 249 × 450 hrúbka steny 450mm. Vnútorné nosné steny tvorí murivo z tvaroviek YTONG Univerzal PDK 300 599 × 249mm a z tvaroviek YTONG Statik HL 200 599 × 249 × 200 mm. Priečky sú navrhnuté z priečkoviek YTONG 150 599 × 249 × 150 mm. Na prízemí je navrhnutý jeden stĺp oceľobetónový monolitický, prierez kruhový 300mm omietnutý podopierajúci strechu. V objekte je navrhnutý komín Schiedel Uni ADV 20, 360x360mm. Strop je navrhnutý systémový polomontovaný nosníkoví Ytong Ekonom, hrúbka 200 mm. Súčasťou stropu je jeden balkón s dreveným zábradlím. Preklady nad oknami a dverami sú navrhnuté zo stavebného systému YTONG. Na prízemí sa nachádza terasa - oceľobetonová monolitická doska hr. 150mm. Objekt je zastrešený sedlovou strechou so sklonom 30 stupňov. Konštrukcia strechy je tvorená hambálkovým krovom s upraveným podhľadom. Vstup do objektu je chránený drevenou pultovou strieškou so sklonom 5°. Strecha je pokrytá strešnou krytinou - škridla pálená Tondach, antracit.






