14. ročník súťaže Rodinný Dom
Dom s jednodouchou strechou
Andrej

Názov projektu
Spoluautor projektu
Vedúci projektu
Názov školy
Rok
Opis vášho projektu
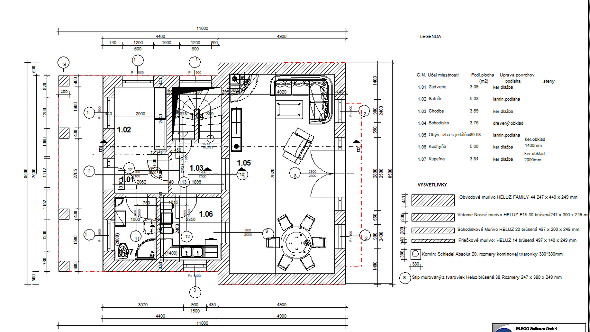
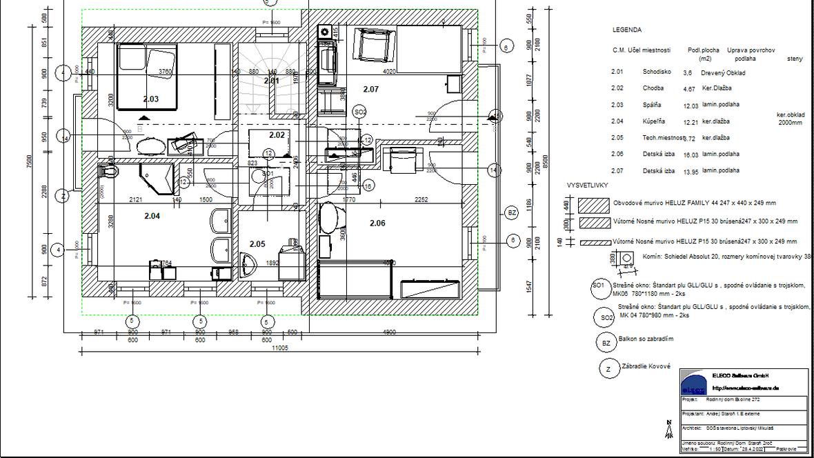
Objekt rodinného domu je situovaný v časti obce Gôtovany na pozemku investora. Terén pozemku je členitý , pôvodne orná pôda. Pozemok s parcelným číslom 610/20 patrí do katastrálneho územia: k.ú Gôtovany Prístup na pozemok je priamy z obecnej komunikácie. Vstup do domu je riešený zo severovýchodnej strany. Prehľad súhrnných údajov: Zastavaná plocha : 108.8 m2 Obostavaný priestor : 555.38 m2 Úžitková plocha : 122.02 m2 Konštrukčne je rodinný dom navrhnutý ako murovaný z obvodových z tvaroviek Heluz Family 44 a Schodisková stena z tvaroviek Heluz Family 20, rozmerov 497x200x249mm na maltu pre tenké škáry. Vnútorné nosné murivo Heluz Family 30 247x300x249mm Priečky sú navrhnuté z tvaroviek Heluz Family 14 rozmerov 497x140x249 mm Na prízemí je navrhnutý 4 rovnaké stlpy - Murované z tvaerovi Heluz P 15 40 pôdorysných rozmerov 400x400mm omietnuté. V objekte je navrhnutý 1 Komín Schiedel Absolut 20 UNI Advanced dvoj prieduchový Uni ADV 1420,rozmery tvarovky, 380*380mm Objekt je zastrašený je sedlovou strechou so sklonmi 20 a 15 stupňov. Konštrukcia strechy je tvorená hambálkovým krovom s upraveným podhľadom. Strecha je pokrytá krytinou škridla pálená Tondach SAMBA 14. Navrhnutý je odkvapový systém: KJG oceľový pozinkovaný čierny.




