15. ročník súťaže Rodinný Dom
Ing.arch.Petra Radvaniová
Natália Košútová

Názov projektu
Four-generation´s house
Spoluautor projektu
Ľudmila Nováková
Vedúci projektu
Ing.arch.Petra Radvaniová
Názov školy
SPŠ stavebná a geodetická Košice
Rok
2023
Opis vášho projektu
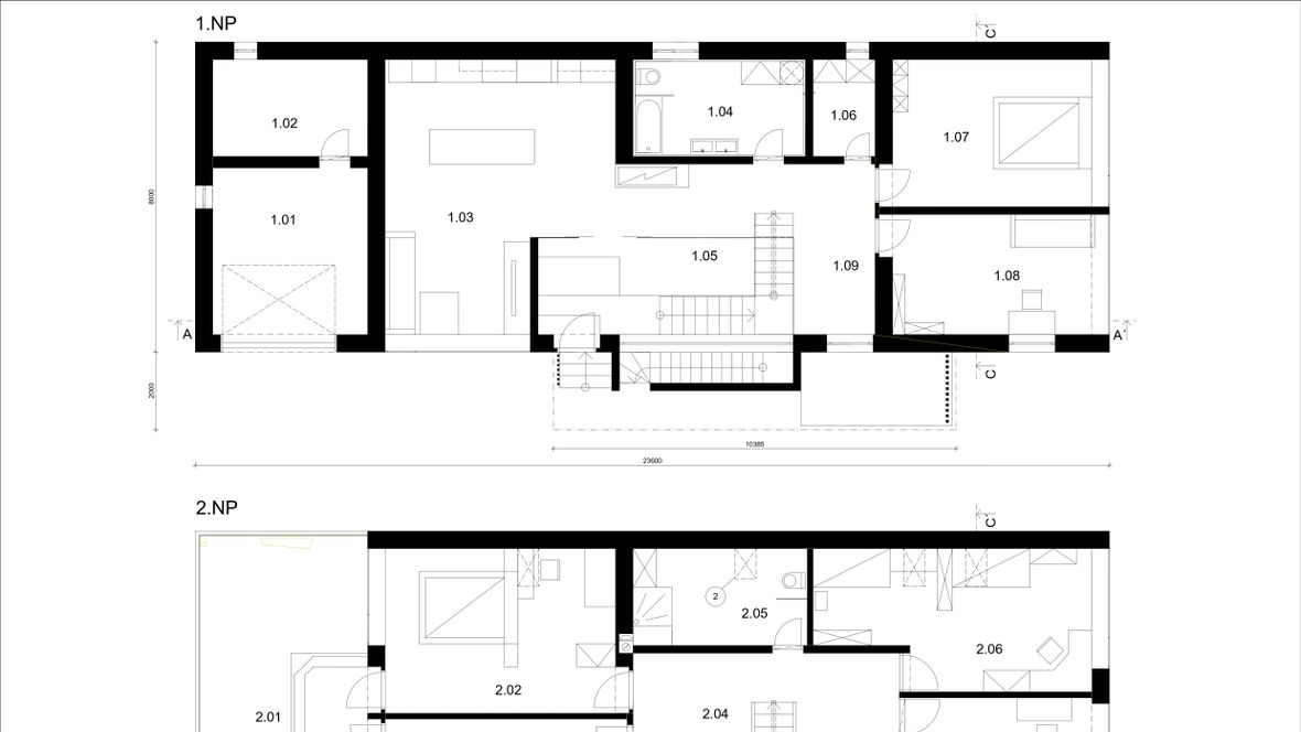
Four-generation´s house, v preklade dom štvrtej generácie, ktorá v ňom žije. Myšlienkou tohto domu je zachovanie už existujúceho objektu, aby mohol vytvárať domov ďalším generáciám. Účelom rekonštrukcie nie je iba tvorba nového rodinného domu ale zároveň zachovanie histórie toho pôvodného. Interiér aj exteriér sa nesie v neutrálnych farbách, ktoré dopĺňa zeleň v dedinskom prostredí aj na samotnom pozemku. Pri návrhu rekonštrukcie sa uvažovalo aj o využití slnečnej energie, o ochrane prírody ako takej a v neposlednom rade o použití ekologických materiálov.














