15. ročník súťaže Rodinný Dom
2023
Ema Machová

Názov projektu
Dom Alaska
Spoluautor projektu
-
Vedúci projektu
Ing. Sylvia Bezáková
Názov školy
Stredná priemyselná škola stavebná v Nitre
Opis vášho projektu
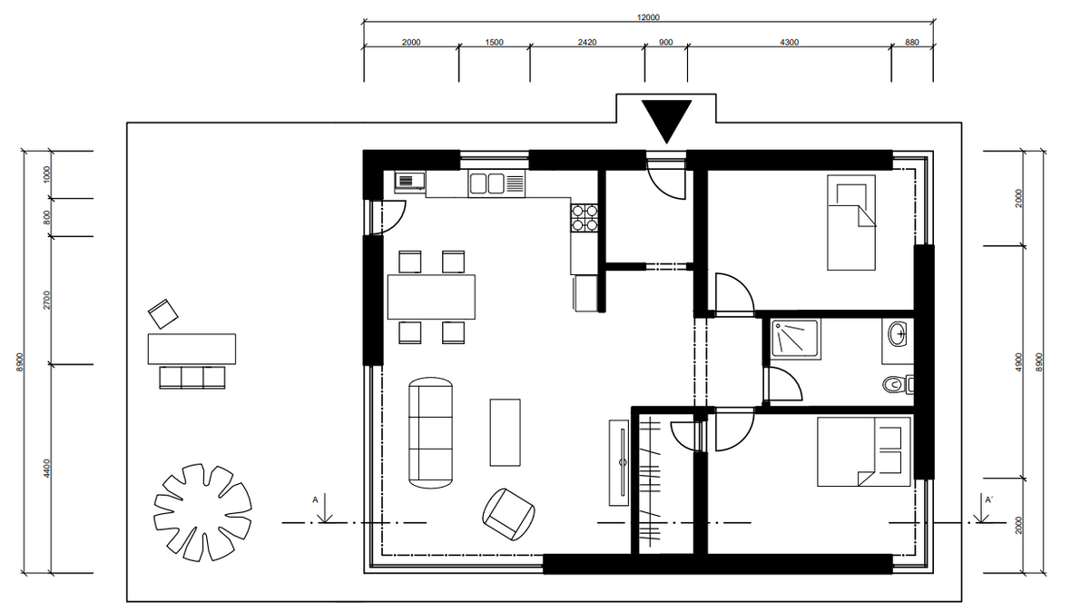
Praktický, malý rodinný dom „Alaska“ na spôsob bungalovu pozostáva z dvoch častí, z ktorých jedna je vyvýšená. Centrálnu časť tvorí obývacia miestnosť spojená s kuchyňou a jedálňou. Nočná zóna je situovaná vo vyvýšenej časti domu, ktorá pozostáva z dvoch spální a kúpeľne. Vďaka oknám VELUX sa do interiéru dostáva čo najviac slnečných lúčov. Prevládajúce použitie betónu v interiéri domu na podlahách a stenách zjemňuje drevený nábytok v teplých tónoch. Napriek menšej veľkosti dom pôsobí priestranným a svetlým dojmom. Vhodný aj na úzke pozemky.












