15. ročník súťaže Rodinný Dom
Jakub Ružomberka
Jakub Ružomberka

Názov projektu
JAKUB HOME
Spoluautor projektu
Jakub Ružomberka
Vedúci projektu
Ing. Zuzana Šišáková
Názov školy
SOŠ Stavebná LM
Rok
2023
Opis vášho projektu
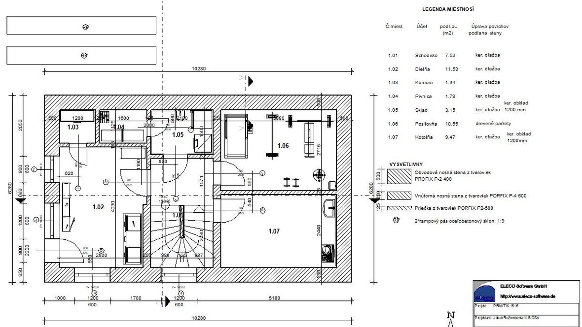
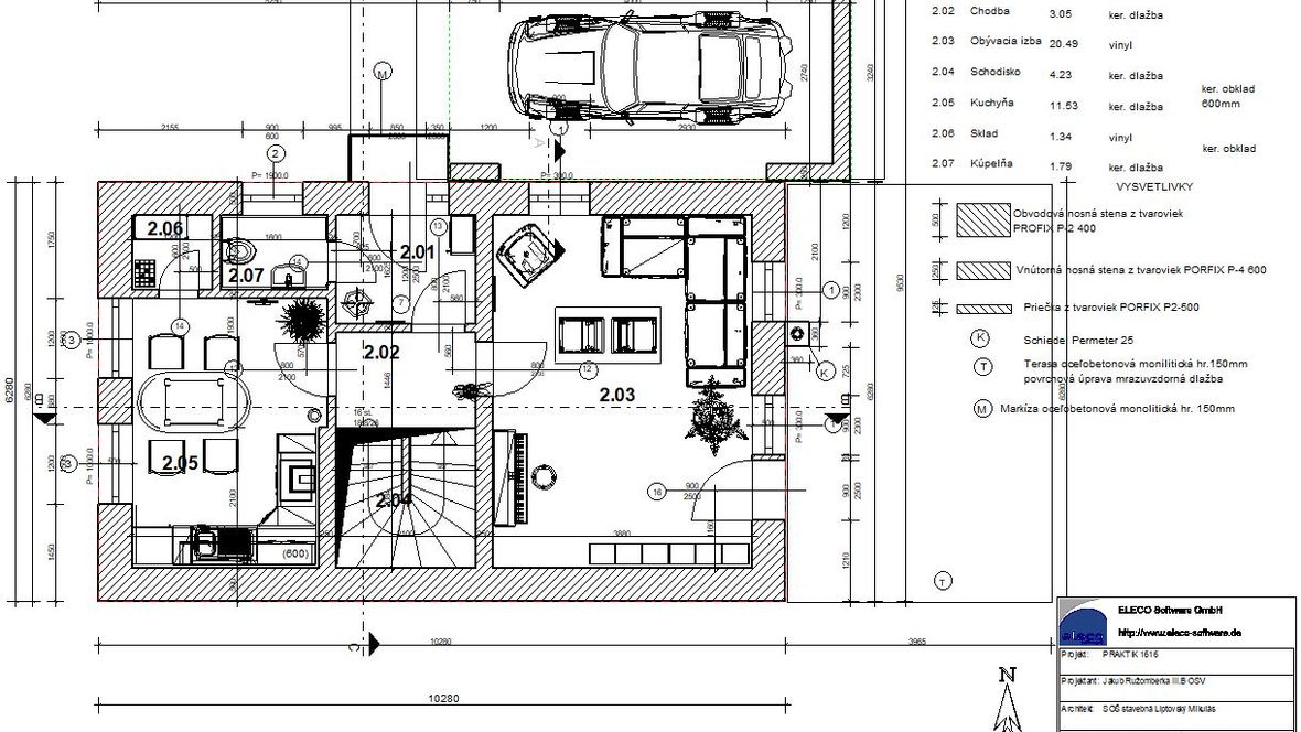
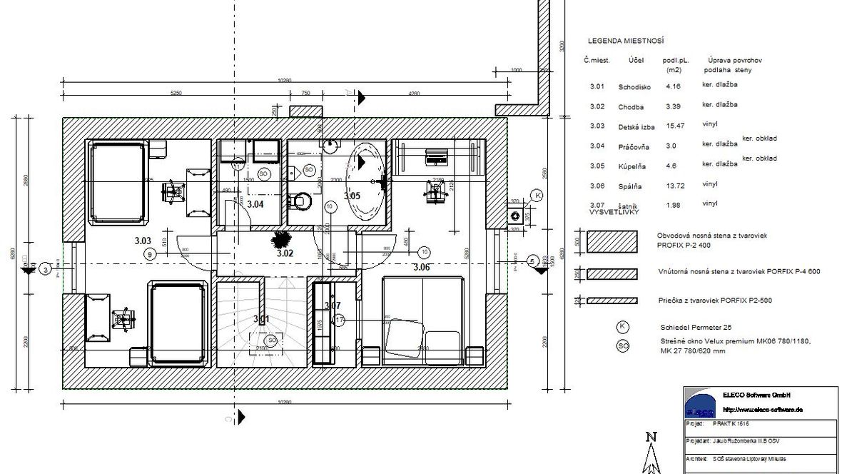
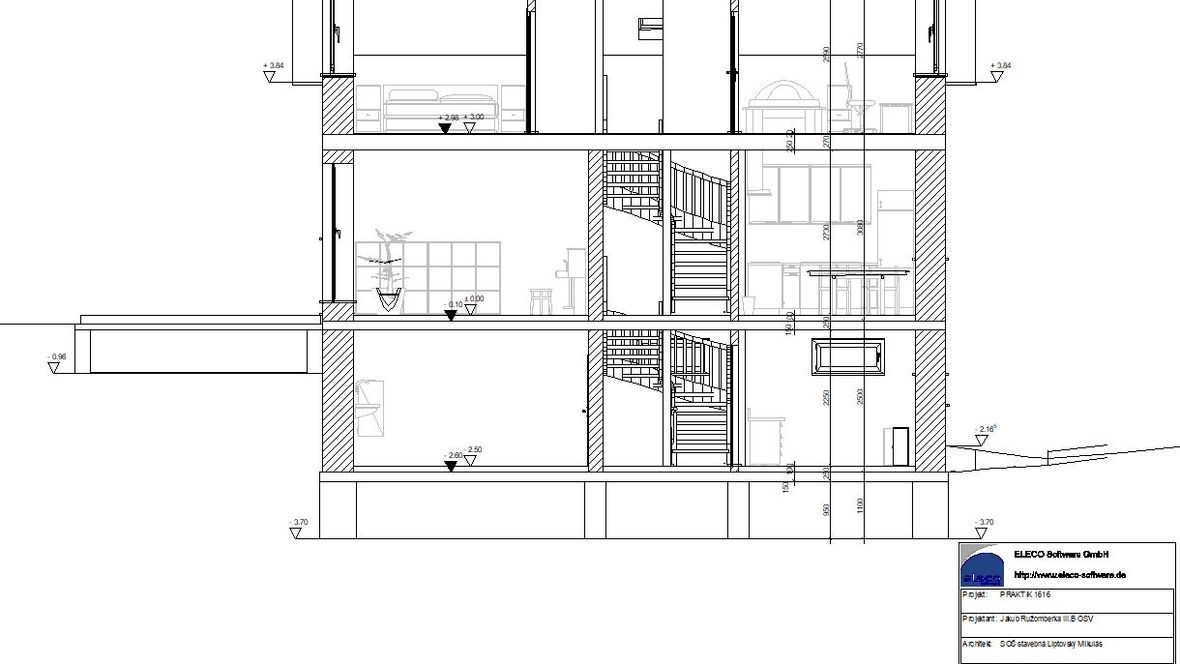
Rodinný dom s pôdorysnými rozmermi ( 10,280 x 6,280m) je 3 podlažný jednogeneračný rodinný dom v svalovitom teréne. Je navrhnutý z tvaroviek z pórobetónového systému Porfix tak, aby vyhovoval tepelnotechnickým požiadavkám na bývanie. Má sedlovú strechu so sklonom 35° a pultovú striešku na garáži so sklonom 15° aby chránila vstup do objektu. Strešný plášť je zateplený 3 vrstvami tepelnej izolacie Isover a ukončený strešnou krytinou Tondach. Podkrovie je presvetlené a prevetrané strešnými oknami Velux Premium MK06 780/1180 mm v počte 2 ks a MK 27 780/620 mm v počte 1 ks.














