15. ročník súťaže Rodinný Dom
Radovan Mrva
Radovan Mrva

Názov projektu
RADOV DOM
Spoluautor projektu
Radovan Mrva
Vedúci projektu
Ing. Zuzana Šišáková
Názov školy
SOŠ Stavebná Liptovský Mikuláš
Rok
2023
Opis vášho projektu
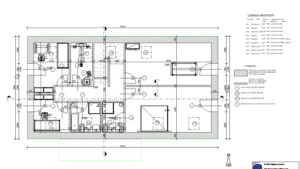
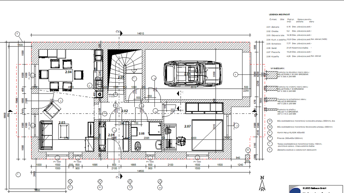
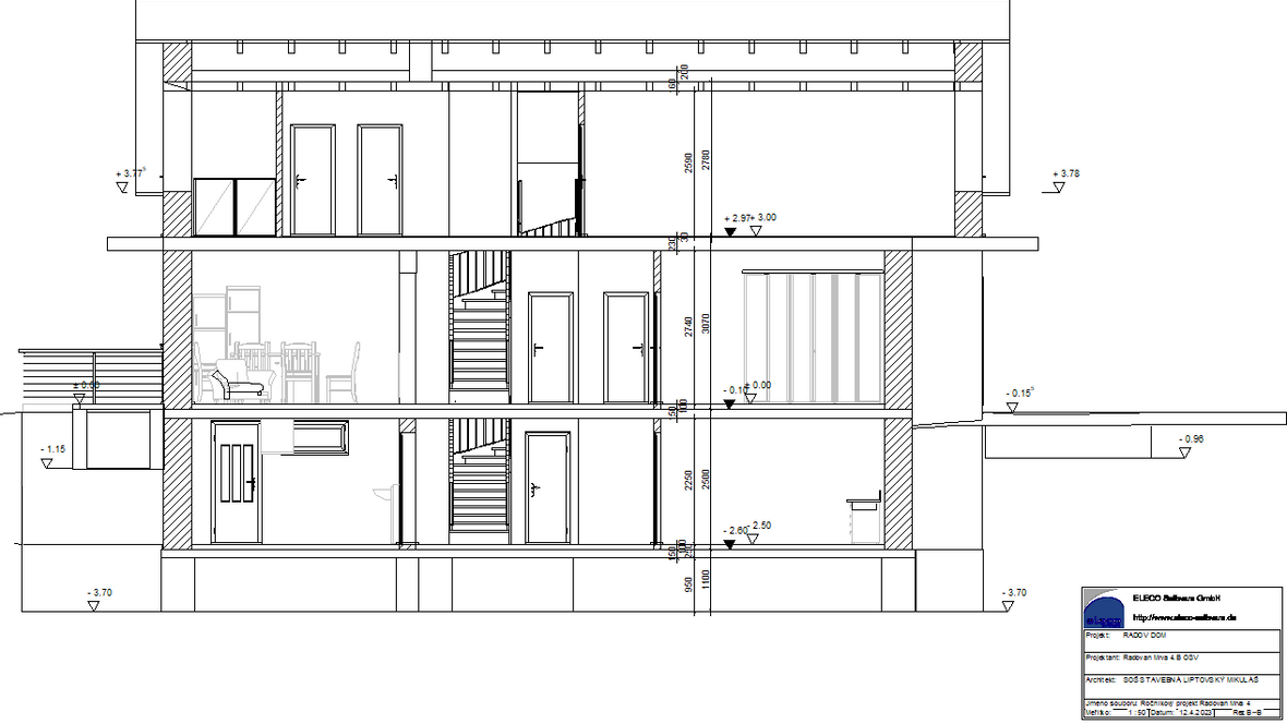
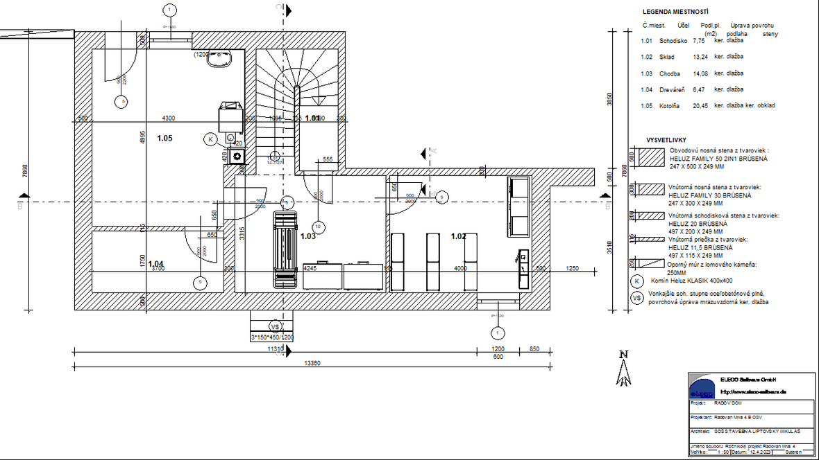
Základné informácie o rodinnom dome RADOV DOM Rodinný dom s pôdorysnými rozmermi 14,610mx7,860m je trojpodlažný jednogeneračný v svahovitom teréne. Je navrhnutý z tehlového materiálu Heluz, tak aby vyhovoval súčasným tepelnotechnickým požiadavkám nízkoenergetickej budovy na bývanie. Má sedlovú strechu so sklonom 38°. Strešný plášť je zateplený tromi vrstvami tepelnej izolácie Isover zakončený je strešnou krytinou Blachotrapez z oceľového plechu. Podkrovie je presvetlené a prevetrané strešnými oknami Velux Štandard MK06-780x1180, MK04-780x980 v celkovom počte 9ks.















