15. ročník súťaže Rodinný Dom
Kevin Štefko
Kevin Štefko

Názov projektu
ENZO HOME
Spoluautor projektu
Kevin Štefko
Vedúci projektu
Ing. Zuzana Šišáková
Názov školy
SOŠ Liptovský Mikuláš
Rok
2023
Opis vášho projektu
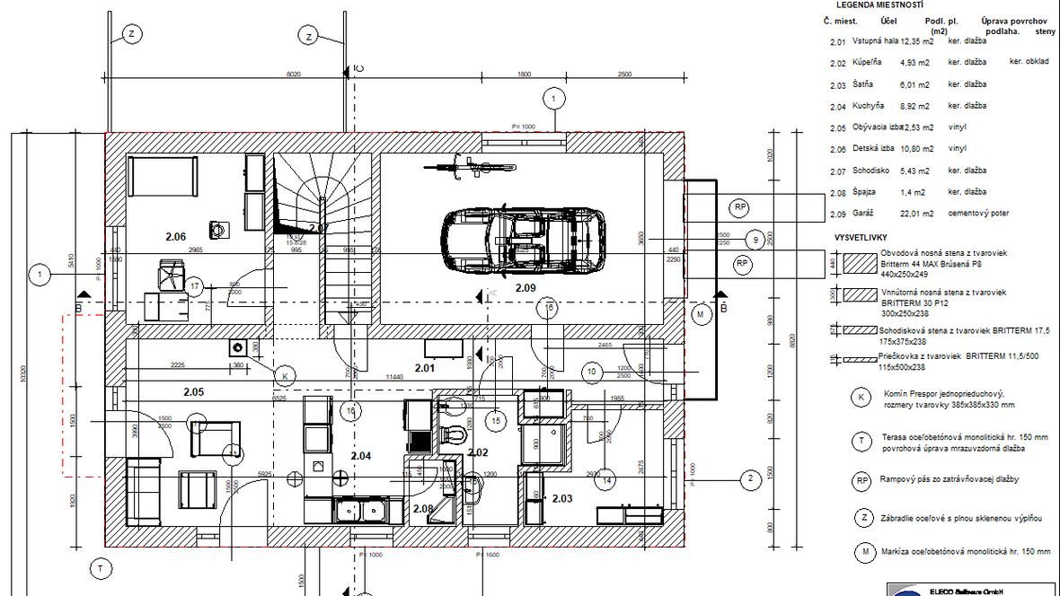
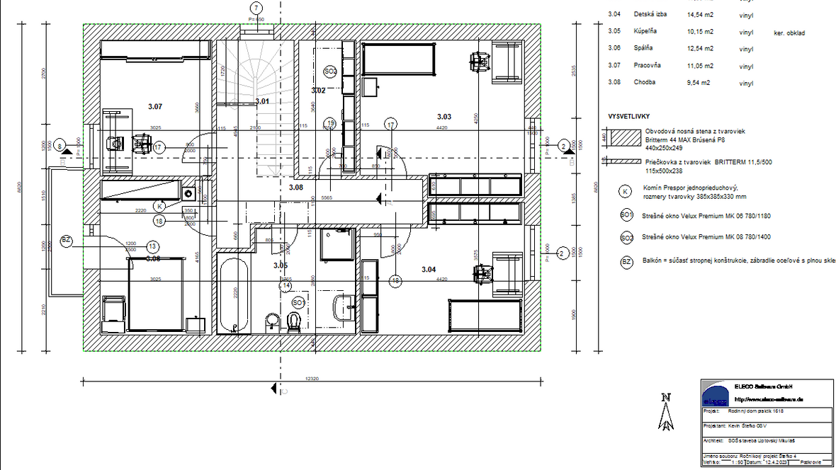
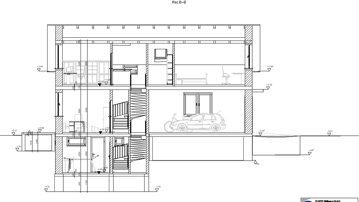
Základné informácie o rodinnom dome ENZO HOME: Rodinný dom s pôdorysnou plochou 12,32m x 8,82m je trojpodlažný . Je navrhnutý z tehlového stavebného systému Britterm tak, aby vyhovoval súčasným tepelnoizolačným požiadavkám nízkoenergetickej budovy na bývanie. Má sedlovú strechu so sklonom 35° a markízou nad vstupom a garážou. Strešný plášť je zateplený tromi vrstvami tepelnej izolácie Rockwool a má strešnú krytinu Tondach. Podkrovie je presvetlené a prevetrané štyrmi fasádnymi oknami, jednými balkónovými plastovými dverami a strešnými oknami Velux MK 06 780/1180 mm v počte 3 ks a Velux MK 08 780/1400 v počte 2 ks.













