15. ročník súťaže Rodinný Dom
Matej Veselovský
Matej Veselovský

Názov projektu
HOME SWEET HOME
Spoluautor projektu
Matej Veselovský
Vedúci projektu
Ing. Zuzana Šišáková
Názov školy
SOŠ stavebná Liptovský Mikuláš
Rok
2023
Opis vášho projektu
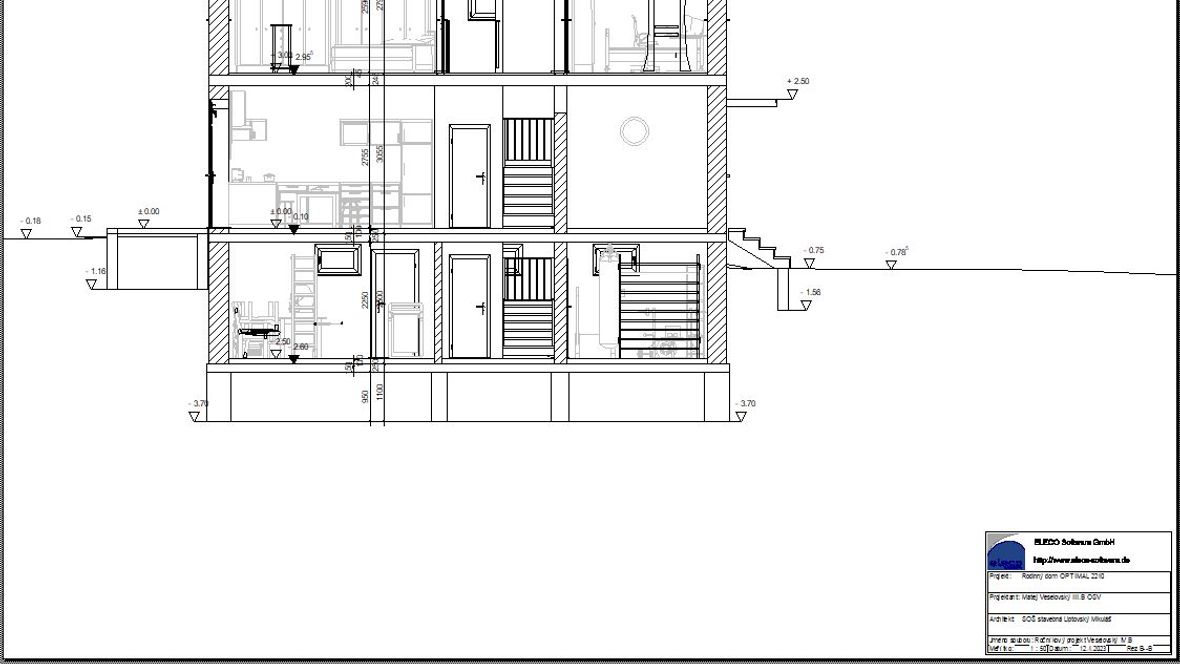
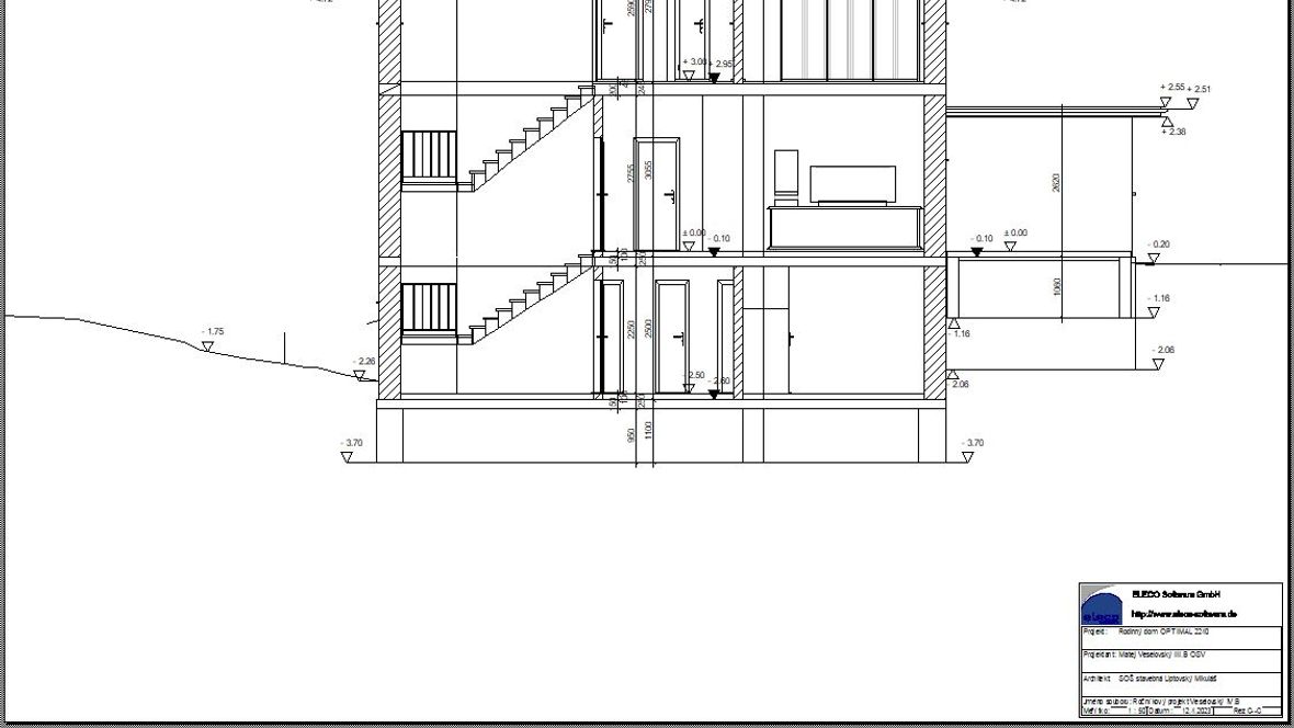
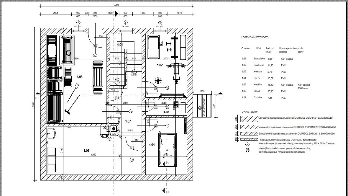
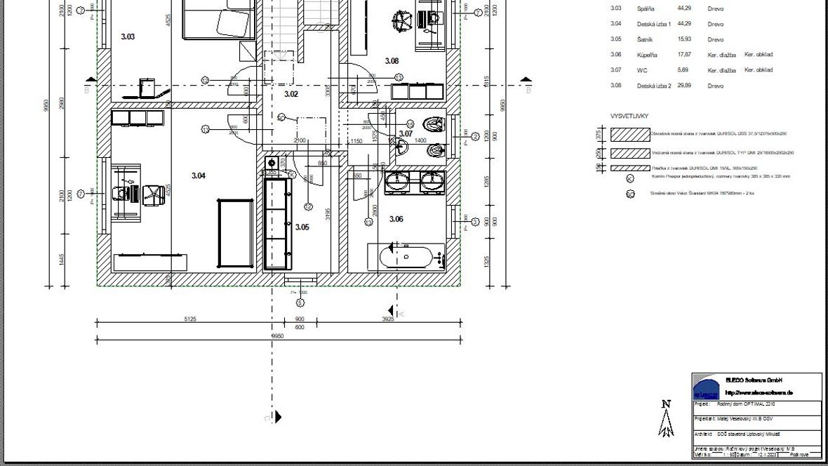
Rodinný dom s pôdorysnou plochou 9,95mx9,95m je trojpodlažný jednogeneračný. Je navrhnutý z drevoštiepkového systému DURISOL tak, aby vyhovoval súčasným tepelnotechnickým požiadavkám nízkoenergetickej budovy na bývanie. Má sedlovú strechu so sklonom 15° a nad garážou plochú striešku s minimálnym sklonom . Strešný plášť je zateplený 3 vrstvami tepelnej izolácie Isover a ukončený je strešnou krytinou Blachotrapéz Trend z oceľového plechu. Podkrovie je presvetlené a prevetrané 7 fasádnymi plastovými oknami a 1 strešným oknom Velux Štandard MK04 780*980mm.
















