16. ročník súťaže Rodinný Dom
AELIN
Edita Guzmická

Názov projektu
Spoluautor projektu
Vedúci projektu
Názov školy
Rok
Opis vášho projektu
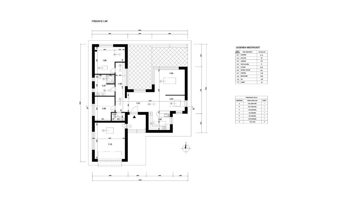
Čím je okno väčšie, tým má miestnosť viac svetla, slnka, pekný výhľad do záhrady, aj pobyt v miestnosti človeka upokojuje. Toto je AELIN jednopodlažný rodinný dom ideálny pre rodinu s dieťaťom, ktoré hľadajú moderný domov. Tento dom je určený pre široký pozemok v zastavanej štvrti. Pri návrhu tohto domu sme sa zamerali na to čo je najdôležitejšie pre život - prirodzené slnečné svetlo. Cieľom bolo využiť denné svetlo v interiéri a teda poskytnúť dostatok svetla pomocou strešných okien a svetlovodov Velux. Dom sme sa snažili navrhnúť tak, aby čo najviac zaujal ľudské oči. Preto má dom 2 konštrukčné výšky a taktiež zaujímavý prvok v podobe palmového stromu, pre ktorý bol vytvorený otvor v stropnej konštrukcií. Dom sa delí na nočnú časť ktorej svetlá výška je 2,9 m a dennú časť kde svetlá výška je 3,2 m. Z obývacej izby sa môžete prejsť von na terasu, ktorá disponuje posedením a veľkým bazénom. Je ideálna na relax. Ďalej sme sa rozhodli pre zelenú strechu, ktorá znižuje teplotu okolia, reguluje vnútornú teplotu, šetrí energiu a podporuje biodiverzitu v meste. Interiér domu obsahuje moderné prvky, kde sme sa snažili docieliť zladenie materiálov a farieb, ktoré pôsobia harmonicky a spríjemňujú vám čas strávený vo vašom domove.













