16. ročník súťaže Rodinný Dom
Urban House
Marek Šibík

Názov projektu
Spoluautor projektu
Vedúci projektu
Názov školy
Rok
Opis vášho projektu
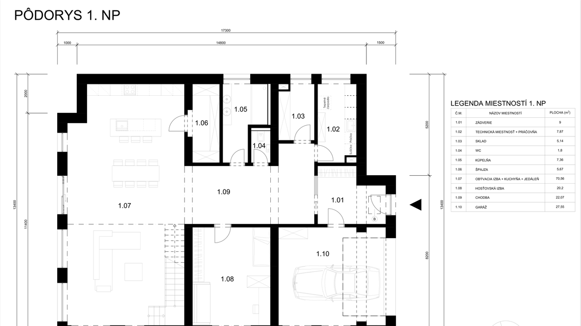
Projekt "Urban House" je dvojpodlažný rodinný dom určený pre 4 člennú rodinu. Ide o dom s plochou (zelenou) strechou doplnenou svetlíkmi VELUX, ktoré zabezpečujú optimálne presvetlenie objektu. Dizajn domu je jednoduchý. Fasádu z pohľadového betónu dopĺňajú kovové antracitové lamely. V interiéri prevládajú tlmené farby, ktoré dopĺňa drevo a kov. Zaujať môžu veľkoformátové okná, ktoré dokonale prepájajú interiér s exteriérom. Obývacia izba je tvorená galériou, kde zaujímavým prvkom sú kovové "laná" slúžiace nielen ako zábradlie, ale aj ako dizajnový prvok, ktorý opticky znásobuje výšku a umožňuje slnečným lúčom kresliť zaujímavé tiene po stenách galérie. Galéria je orientovaná na juh, čo zabezpečuje kvalitné presvetlenie počas celého dňa. Terasa so záhradou predstavujú dokonalé miesto pre relax či zábavu, kde si obyvatelia môžu vychutnať impozantnú panorámu zapadajúceho slnka. V tomto dome si každý nájde to svoje, a preto si dovoľujem tvrdiť, že ponúka optimálne miesto pre spokojný a zdravý život.












