16. ročník súťaže Rodinný Dom
Nova
Andrej Čelko

Názov projektu
Spoluautor projektu
Vedúci projektu
Názov školy
Rok
Opis vášho projektu
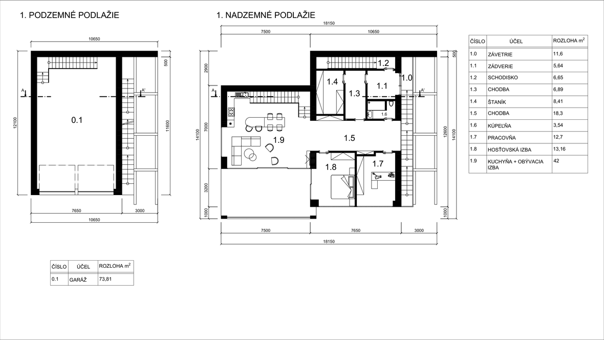
Rodinný dom Nova je situovaný v severozápadnej časti Žiliny, Gbeľanoch. Nachádza sa vo svahovitom teréne. Výzvou bolo vytvoriť riešenie, ktoré zaistí prístup denného svetla do celého objektu. Pojem Nova sa vzťahuje na hviezdu, ktorá sa objavila len nedávno, teda je nová a žiarivá. Ide o atypický jav vo všednom vesmíre. Rovnako rodinný dom Nova disponuje asymetrickým tvarom zaobleného trojuholníka zakomponovaným v každej miestnosti domu, ktorý do typického tvaru domu vnáša kontrast. Spod lesa nad domom je v každom ročnom období možné vidieť hviezdy pretože sa dom nachádza mimo centra, a tým pádom aj mimo svetelného smogu. Pre riešenie denného svetla bolo potrebné do chodieb vložiť svetlovody spoločnosti Velux, ktoré zaistia dostatok denného svetla počas celého dňa. Dom je zložený z dvoch nadzemných podlaží a garáže. Garáž a prvé nadzemné podlažie je zo severnej časti zapustené vo svahu zatiaľčo južné priečelie je pripojené na ulicu. Dom je určený pre rodinu s 2 deťmi, no pre príležitostných hostí či 5. člena domácnosti slúži hosťovská izba na 1. podlaží.

















