18. ročník soutěže King of daylight / Rodinný Dům - 2. místo, Cena zamestnancov VELUX
RD EXPLEO
Petr Kozák

Název projektu
RD EXPLEO
Spoluautor projektu
Vedoucí projektu
Ing. arch. Tomáš Fischer
Název školy
SPŠ Stavební Opava
Rok
2022
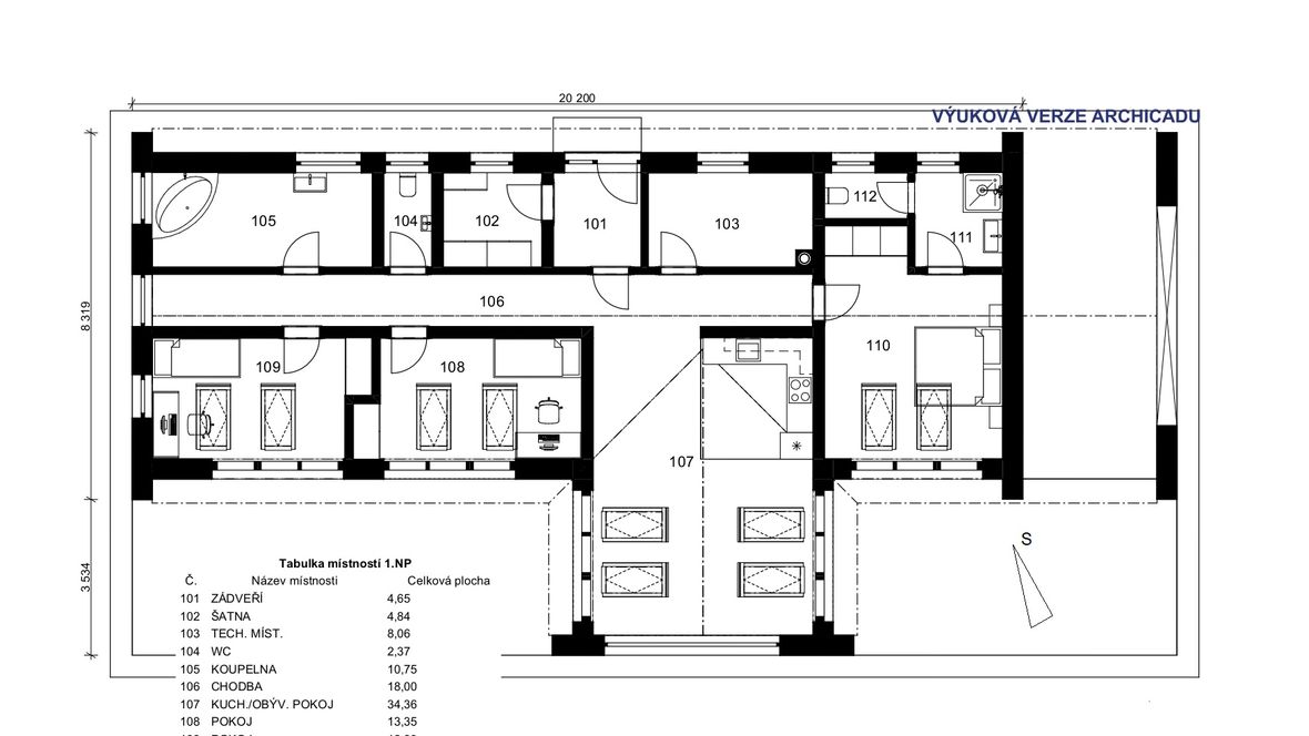
Popis projektu
Mým záměrem bylo navrhnout jednoduchý, venkovský, rodinný dům. Výsledkem je přízemní objekt, okapově orientovaný ke komunikaci. Sedlovou střechu zakončenou atikou podpírá krov přiznaný v interiéru. Obytné místnosti jsou z jižní strany prosvětleny francouzskými a střešními okny.





