18. ročník soutěže King of daylight / Rodinný Dům
RODINNÝ DŮM APOLLÓN
Lenka Jirkalová

Název projektu
RODINNÝ DŮM APOLLÓN
Vedoucí projektu
Ing. Arch. Jiří Mysliveček
Název školy
Střední průmyslová škola stavební, České Budějovice
Rok
2022
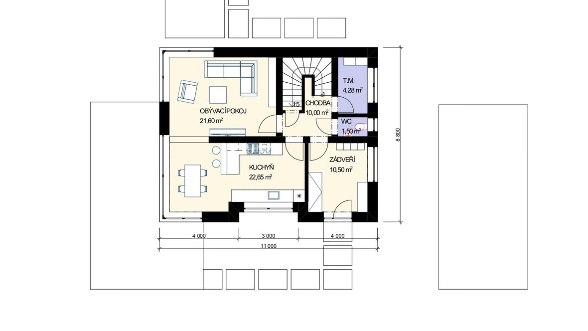
Popis projektu
Rodinný dům Apollón s jedním podzemním podlažím a obytným podkrovím s možností podsklepení je svým dispozičním řešením vhodný pro čtyřčlennou rodinu. Okna Velux zajišťují ve všech obytných místnostech příjemné množství denního světla a kontakt s okolní přírodou, takže vytvářejí útulné prostředí ideální pro život.











