18. ročník soutěže King of daylight / Rodinný Dům
RD Gardénie
Klára Brixová

Název projektu
Vedoucí projektu
Název školy
Rok
Popis projektu
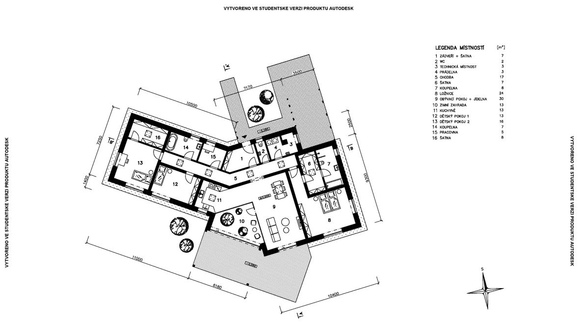
HLAVNÍ MYŠLENKA: Mým cílem bylo navrhnout rodinný dům s dostatkem přirozeného světla a maximálním propojením s okolním prostředím. Jako centrum dispozice hlavního obytného prostoru jsem zvolila prosklenou zimní zahradu, navazující na venkovní terasu. ARCHITEKTONICKÉ ŘEŠENÍ A DISPOZICE: Jedná se o jednopodlažní dům s plochou střechou, určený pro čtyřčlennou rodinu. Dominantou obytného prostoru je již zmíněná zimní zahrada, která odděluje posezení od kuchyňského koutu. Neobvyklé tvarové řešení kuchyně vzniklo díky nepravidelnému půdorysu. Všechny obytné místnosti směřují na jih. Obytný prostor směrem do zahrady rozšiřuje venkovní terasa, stíněná lehkou dřevěnou pergolou. Můžeme na ni vstoupit jak z obývacího pokoje, tak ze zimní zahrady. V severní, vstupní části je navrženo zastřešené parkovací stání se sloupky tvaru písmene V. KONSTRUKČNÍ A MATERIÁLOVÉ ŘEŠENÍ: Dům je navržen jako zděná stavba s plochou vegetační střechou. Kompozice jeho hmot je podtržena materiály fasády – obytné části jsou z pohledového betonu, vstupní část a zimní zahrada mají na fasádě hladkou bílou omítku. Materiály fasád kontrastují s dřevem terasy a pergoly.


















