18. ročník soutěže King of daylight / Rodinný Dům
Rodinný dům ,, BONIFÁC "
Alice Lukášová

Název projektu
Rodinný dům ,, BONIFÁC "
Vedoucí projektu
Ing. Kateřina Janoušková
Název školy
Střední odborná škola a Gymnázium Staré Město
Rok
2021/2022
Popis projektu
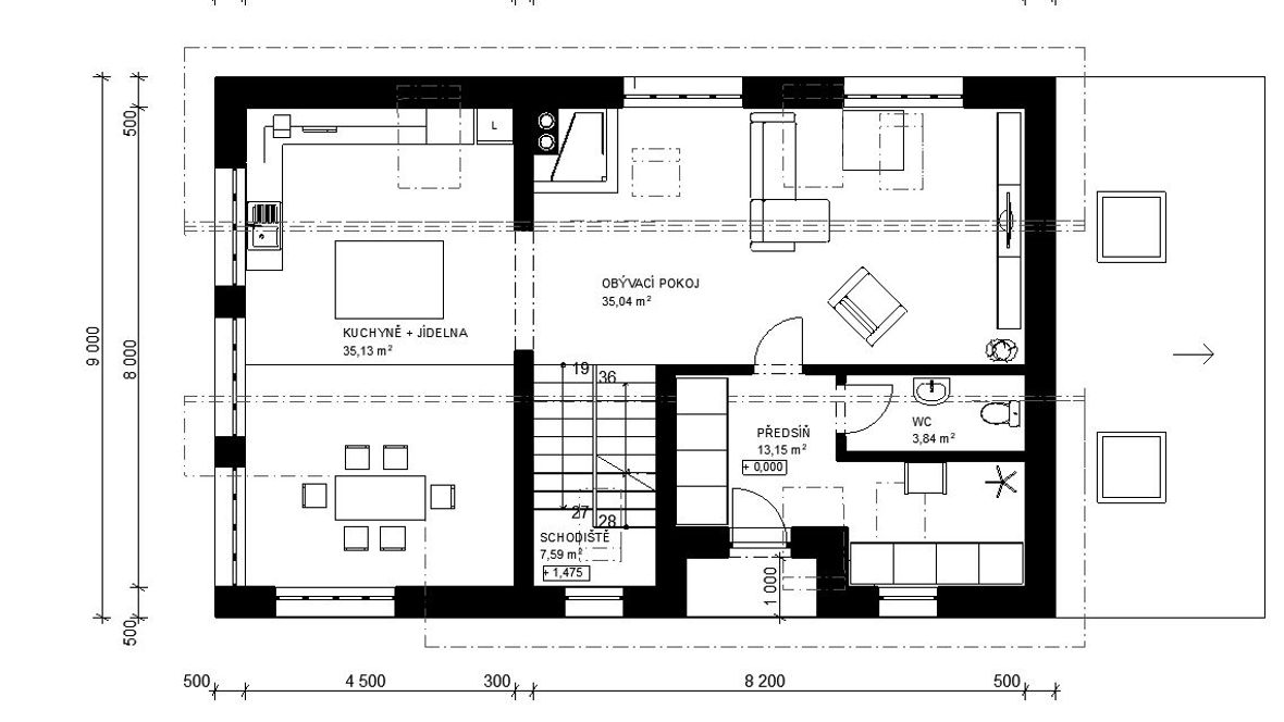
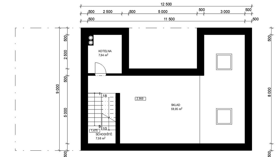
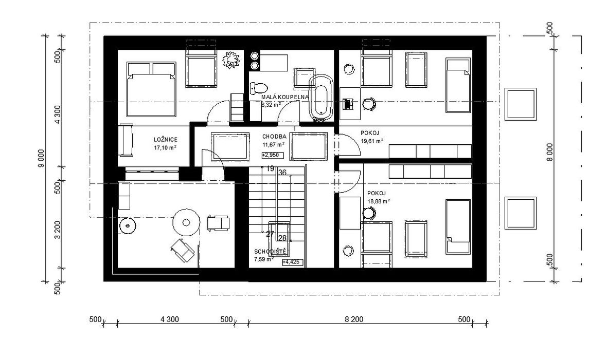
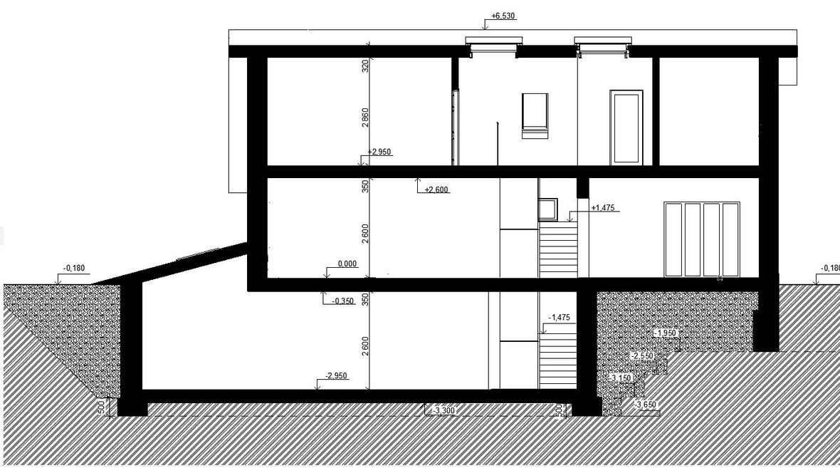
Návrh domu je minimalistický a praktický. Pro optimální světlost místností v podkroví je použito oken Velux. Dům je umístěn v rovném terénu a má jednoduchý obdélníkový tvar. Je částečně podsklepený, část podsklepení je umístěno mimo půdorys 1.NP. K prosvětlení 1.S je využito oken Velux.











