18. ročník soutěže King of daylight / Rodinný Dům
RD Alderaan
Adriana Arpášová

Název projektu
RD Alderaan
Vedoucí projektu
Ing. Arch. Jiří Mysliveček
Název školy
Střední průmyslová škola stavební České Budějovice
Rok
2022
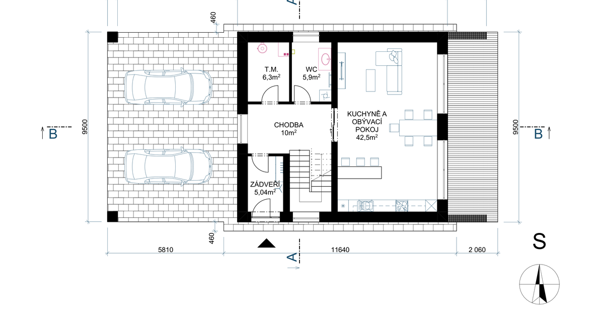
Popis projektu
ARCHITEKTONICKÉ A TECHNICKÉ ŘEŠENÍ: RD je navržen v systému Porotherm a je řešen jako samostatně stojící objekt s možností podsklepení, s jedním nadzemním podlažím a obytným podkrovím. Svým dispozičním řešením uspokojí nároky na bydlení až čtyřčlenné rodiny. Dominantou je zde sestava střešních oken VELUX přes celý střešní plášť.












