18. ročník soutěže King of daylight / Rodinný Dům
KRISTINA
Kristina

Název projektu
KRISTINA
Vedoucí projektu
Ing. Lenka Benovičová
Název školy
Střední škola průmyslová a umělecká Hodonín, příspěvková organizace
Rok
2022
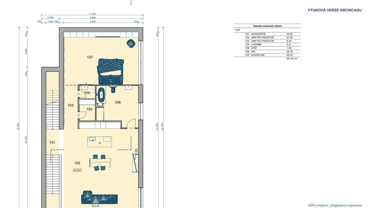
Popis projektu
Moderní rodinný dům, zasazený do svahu u jezera. Fasáda řešena obkladem z atmosfericky odolného ocelového plechu. Dům má v čelní straně rohová velká okna. Celkově výplň otvorů řešena jako hliníková, ze střešních oken použitý typ do ploché střechy. Interiér domu je prostorově otevřený, řešený v minimalistickém stylu









