19. ročník soutěže King of daylight / Freestyle
Hostinec U Čendy
Antonín Kowalczyk

Název projektu
Vedoucí projektu
Název školy
Rok
Popis projektu
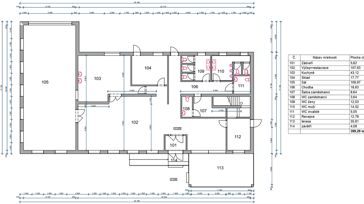
MYŠLENKA Cílem mého návrhu bylo vytvoření zařízení poskytující gastronomické a ubytovací služby s atmosférou příjemného venkovského hostince. Stavba je zasazena do prostředí vesnice Hodoňovice a je určená pro všechny lidi, kteří chtějí trochu zrelaxovat, strávit zde svůj volný čas nebo se zkrátka jen pobavit. POPIS Objekt má jednoduchý půdorys se dvěma nadzemními podlažími a je zastřešený dřevěnou konstrukcí krovu. V 1.NP se nachází společenské prostory jako např. výčep s restaurací a sál, který je vizuálně propojený s okolní přírodou prostřednictvím velkého okna s fixním zasklením. Toto podlaží je řešeno jako bezbariérové. Ve 2NP se nachází devět ubytovacích jednotek. Prosvětlení 1.NP zajišťují okna v obvodových konstrukcích, ve 2.NP jsou navržena střešní okna VELUX GLL/GLU a instalační sety VELUX DUO s manuálním a elektrickým ovládáním. Jeden pokoj má přímou vazbu na střešní terasu, která je přístupná prostřednictvím setu pro střešní terasy VELUX.
















