19. ročník soutěže King of daylight / Freestyle
Víceúčelová budova KARTOOM
Matyáš Bazala

Název projektu
Víceúčelová budova KARTOOM
Vedoucí projektu
ING. Iva Polochová
Název školy
SPŠ stavební Ostrava
Rok
2023
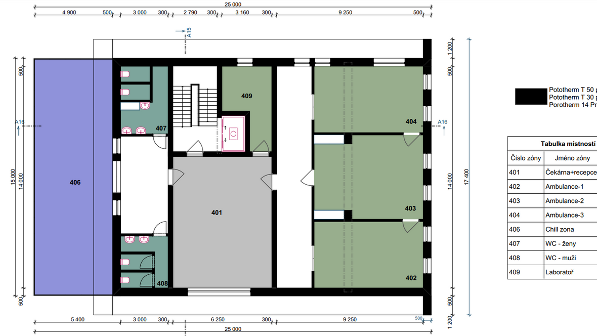
Popis projektu
KARTOOM víceúčelová budova o 4 podlažích. V 1.NP je hlavní lákadlo dýmkárna, ve které si s přáteli můžete odpočinout po náročném dni. V 2. a 3.NP se nacházejí kanceláře pro soukromou firmu s dostatkem prostoru pro odpočinek zaměstnanců. V 4. a posledním podlaží se nachází ortodoncie s prostornou čekárnou. Do všech podlaží je přístup nejen pomocí schodů, ale také do nich vede výtah.















