19. ročník soutěže King of daylight / Rodinný Dům
Bungalov AVA
Monika Musialová

Název projektu
Bungalov AVA
Vedoucí projektu
Ing. Elizaveta Charvátová
Název školy
SPŠ stavební Ostrava
Rok
2023
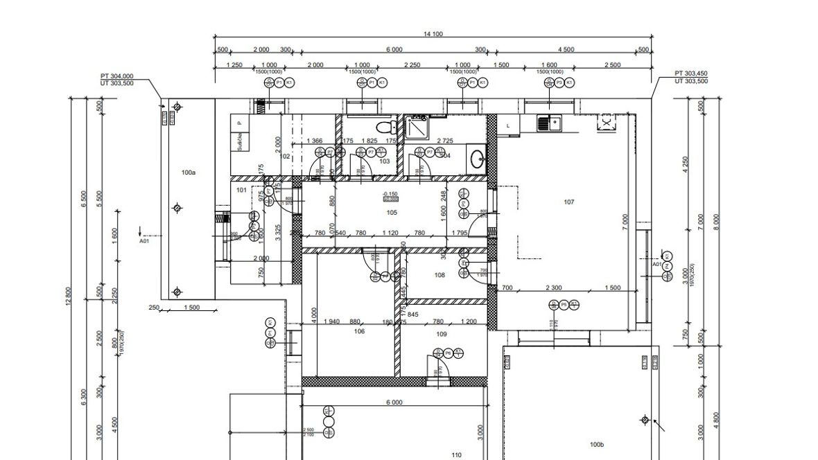
Popis projektu
Jedná se o nepodsklepený bungalov, který je navržen v systému POROTHERM. Kromě jednoplášťové ploché střechy nebo zastřešené terasy disponuje velkými okny a střešním světlíkem VELUX pro dostatek osvětlení místností. Obsahuje dvě obytné místnosti a k dispozici je i garáž pro jedno auto. Celý dům je navržen pro rovinatý terén. Tento dům byl navržen pro mladý pár bez dětí, nebo naopak pro starší pár. Chtěla jsem, aby dům působil klidným a čistým dojmem, ale také, aby šel s dobou.









