19. ročník soutěže King of daylight / Rodinný Dům
RD Lucie
Lucie Látalová

Název projektu
Vedoucí projektu
Název školy
Rok
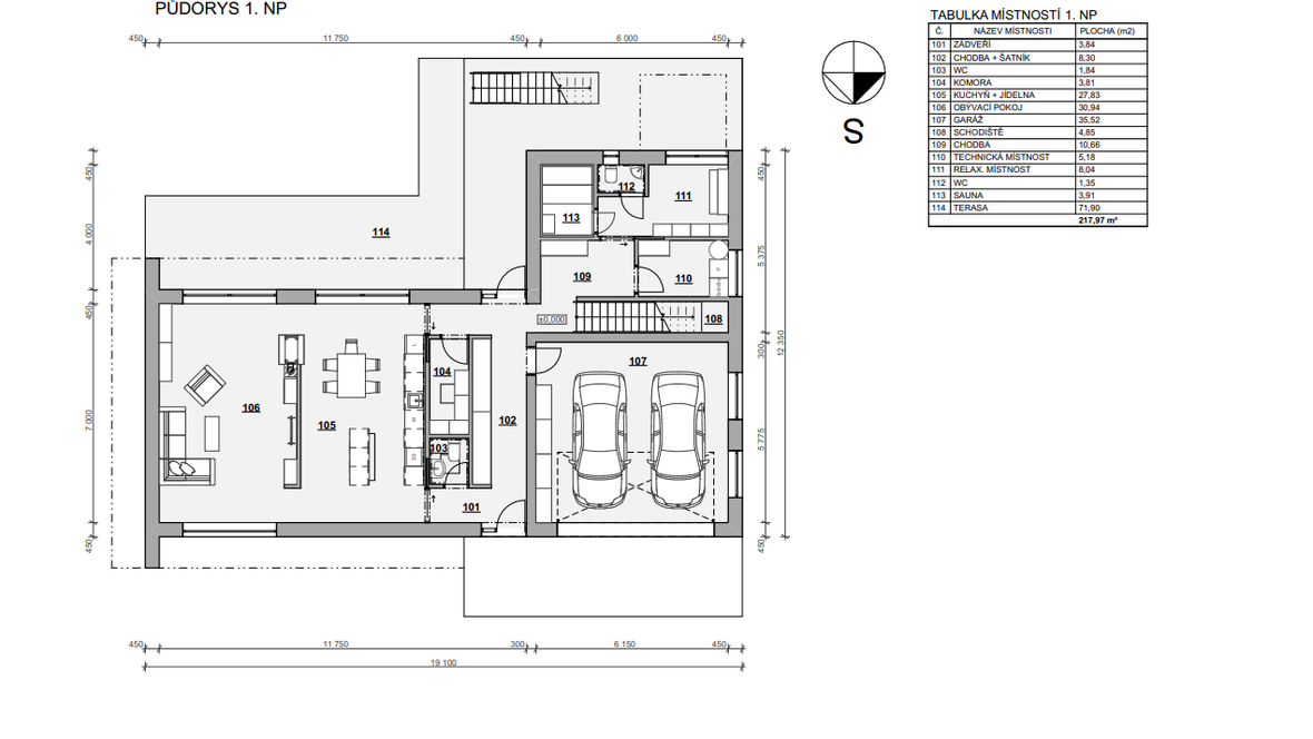
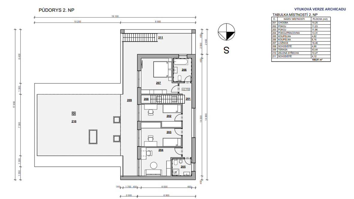
Popis projektu
Myšlenka: Mým cílem bylo vytvořit dvoupodlažní pasivní rodinný dům, který bude odpovídat moderním trendům, ale zároveň bude v symbióze s přírodou. Dále bude dostatečně prostorný a prosvětlený pro čtyřčlennou až pětičlennou rodinu. Osvětlení: Pro dosažení dostatečného prosvětlení jsou v objektu hojně použita francouzská okna, která jsou doplněna designovými světlíky se zaobleným sklem typu CVU. Jsou zasklená trojsklem a vybavená venkovní markýzou s možností ovládání pomocí mobilního telefonu v aplikaci VELUX ACTIVE. Charakteristika projektu: Objekt je ve tvaru písmene L a je rozdělen do čtyř zón - vstupní, společenské, relaxační a klidové. Vstup je orientovaný na sever. Hlavním architektonickým a dekorativním prvkem je železobetonová konstrukce, která také slouží jako neobvyklý druh zastínění. Také je zde použitý dřevěný obklad fasády a zelená střecha pro lepší kontakt člověka s přírodou. Vytápění je řešeno pomocí tepelného čerpadla typu vzduch - voda, ze kterého je teplá voda rozváděná do podlahového topení a převážně v zimních měsících je zde taktéž možnost využít krbová kamna.











