20. ročník soutěže King of daylight / Rodinný Dům
MOTO DŮM
Nikola Tomšejová

Název projektu
Vedoucí projektu
Název školy
Rok
Popis projektu
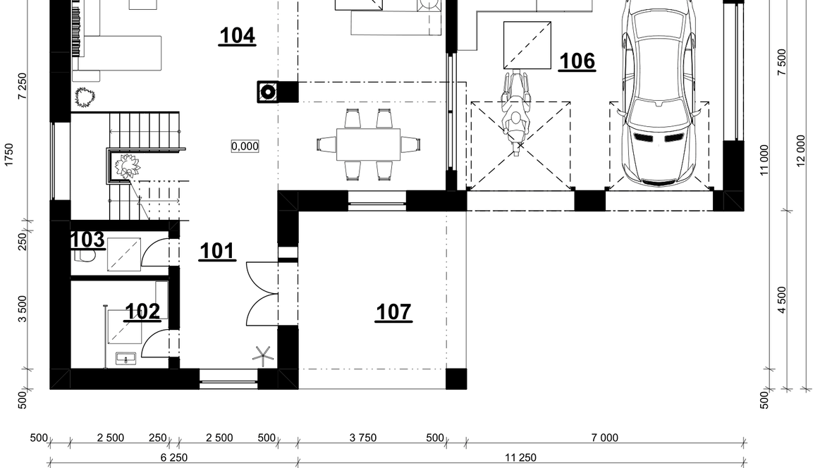
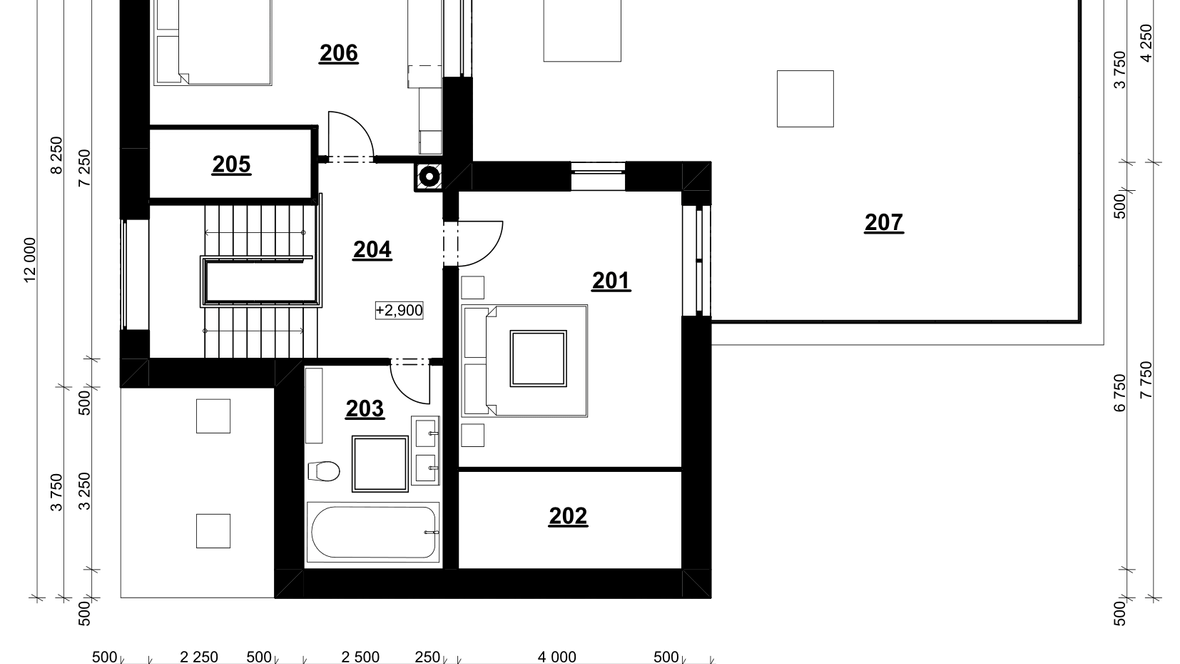
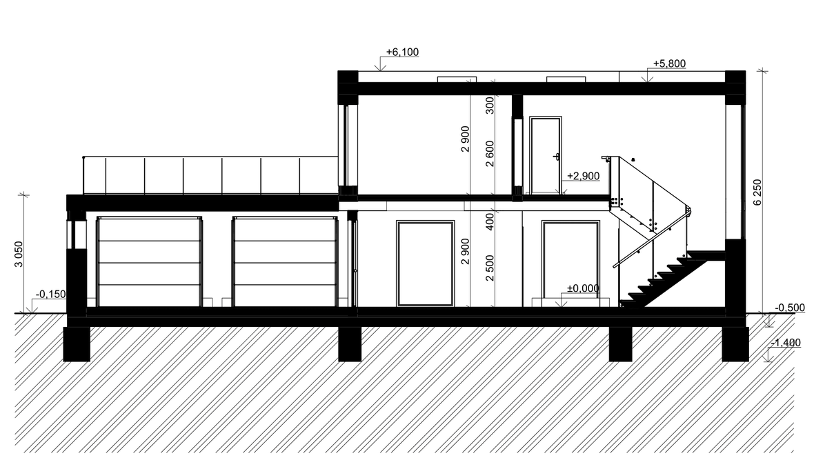
Jedná se o dvoupodlažní pasivní rodinný dům, jehož první podlaží je ve tvaru písmene L s prostornou garáží a dílnou a druhé podlaží je čtvercového tvaru a vytváří tak kvádr. Je koncipován pro tříčlennou až čtyřčlennou rodinu. Inspiraci nachází ve vášni pro motocykly tak, aby byl zároveň i zdrojem pohodlného domova. Hlavní myšlenkou tedy bylo spojit garáž se společenským prostorem. To se povedlo díky posuvným francouzským dveřím tak, že ani v kuchyni nechybí výhled na motocykly a auta. Dbala jsem na úsporné energetické řešení, a také jsem vzala v potaz zdravé prostředí celého prostoru – je dostatečně osvětlen nejen francouzskými okny, ale také střešními světlíky. Zvolila jsem designové světlíky nové generace s plochým sklem ve velikostech 600x600 mm, 1000x1000 mm a 1500x1500 mm. Dům je tak prosvětlen ze všech stran, což přidává na lepší atmosféře celého prostoru. Výhodou je jejich energetická efektivita, díky které nepropustí teplo z domova a možnost dokoupení různých doplňků, které pomohou vybudovat chytřejší domácnost. Kousek přírody nachází v zelené střeše i v dřevěném obkladu a prostor díky absenci příček působí otevřeněji.








